Appartement au 2ème étage 2 ch de +/- 70m² à Bouffioulx
Avenue Paul Pastur 192 - 6200 BOUFFIOULX
Voir sur carte
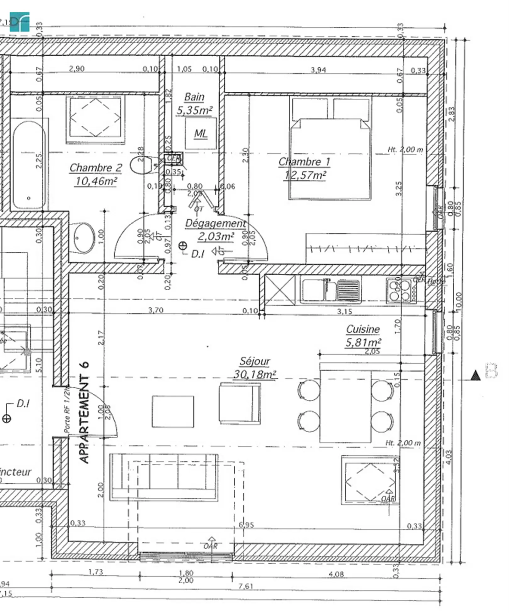
BOUFFIOULX - Av. Paul Pastur 192: A quelques minutes de Gerpinnes, dans une petite copropriété de 6 logements, agréable appartement 2 chambres de +/- 70m² situé au 2ème étage comprenant beau séjour avec cuisine entièrement équipée, petit hall de nuit, 2 chambres et salle de douche avec coin buanderie et wc. Cave et parkings privatifs. Commodités: Châssis DV en PVC, chauffage central au gaz (chaudière à condensation), installation électrique conforme jusqu\'en 2047, vidéophone, porte d\'entrée blindée, compteurs séparés, possibilité d\'acheter un grand garage de +/- 55m² en sous-sol pour 20.000 €. PEB B - 119 Kwh/m²/an - CU: 202302070110987. Prix: 199.000 € (sous réserve d\'acceptation du propriétaire).
Caractéristiques
Immeuble de 6 logements
Châssis DV en PVC
Chauffage central au gaz (chaudière à condensation)
Installation électrique conforme jusqu\'en 2047
Vidéophone
Porte d\'entrée blindée
Compteurs séparés
Cave et parking privatifs
Possibilité d\'acheter un grand garage en sous-sol pour 25.000 €
Composition
2ème étage
Living Superficie: 30,2m²
Cuisine équipée Superficie: 5,8m²
Hall de nuit Superficie: 2,0m²
Chambre à coucher Superficie: 12,6m²
Chambre à coucher Superficie: 10,5m²
Salle de douche Superficie: 5,4m²
- Chambre(s) 2
- Salle(s) de douche 1
- WC(s) 1
- Grenier Non
- Chauffage C.C. au gaz
- Cuisine Entièrement équipée
- Vitrage Double
- Avec bureau Non
- Ascenseur Non
- Surface habitable 70 m²
- Surface du living 30 m²
- Code unique 20230207010987
- Energie spécifique (kWh/m²/an) 119
- Energie totale (kWh/an) 8624
- Type de chauffage C.C. au gaz
A
B B
C
D
E
F
G
