Faire offre à partir de
Appartement RDC 2 chambres de +/- 70m² à Bouffioulx
Avenue Paul Pastur 192 - 6200 BOUFFIOULX
Voir sur carte
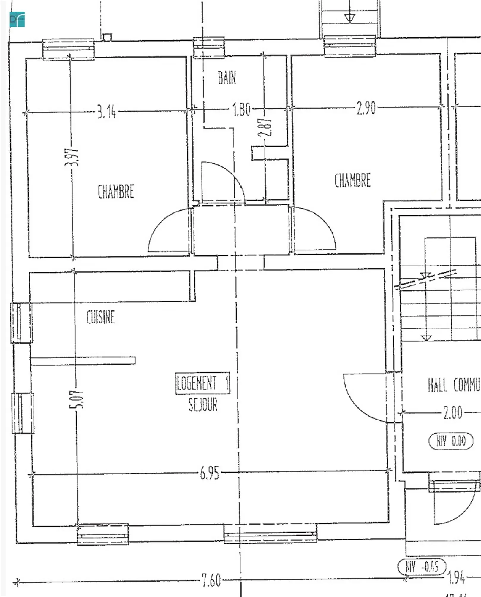
BOUFFIOULX - Av. Paul Pastur 192: A quelques minutes de Gerpinnes, dans une petite copropriété de 6 logements, agréable appartement 2 chambres de +/- 70m² situé au RDC comprenant beau séjour avec cuisine entièrement équipée, petit hall de nuit, 2 chambres et salle de douche avec coin buanderie et wc. Terrasse privative de +/- 55m². Cave et parking extérieur privatifs + allée carrossable privative. Commodités: Châssis DV en PVC, chauffage central au gaz (chaudière à condensation), installation électrique conforme jusqu\'en 2047, vidéophone, porte d\'entrée blindée, compteurs séparés, grand garage de +/- 50m² en sous-sol (2 ou 3 voitures). PEB C - 213 Kwh/m²/an - CU: 20230207006628. Prix: Faire offre à partir de 215.000 € (sous réserve d\'acceptation du propriétaire).
Caractéristiques
Immeuble de 6 logements
Châssis DV en PVC
Chauffage central au gaz (chaudière à condensation)
Installation électrique conforme jusqu'en 2047
Vidéophone
Porte d'entrée blindée
Compteurs séparés
Cave et parking privatifs
Grand garage en sous-sol
Composition
Rez-de-chaussée
LivingSuperficie: 30,2m²
Cuisine équipéeSuperficie: 5,8m²
Hall de nuitSuperficie: 2,0m²
Chambre à coucherSuperficie: 12,6m²
Chambre à coucherSuperficie: 10,5m²
Salle de doucheSuperficie: 5,4m²
TerrasseSuperficie: 55m²
- Chambre(s) 2
- Salle(s) de douche 1
- WC(s) 1
- Grenier Non
- Chauffage C.C. au gaz
- Cuisine Entièrement équipée
- Vitrage Double
- Avec bureau Non
- Ascenseur Non
- Surface habitable 70 m²
- Surface du living 30 m²
- Code unique 20230207006628
- Energie spécifique (kWh/m²/an) 213
- Energie totale (kWh/an) 15816
- Type de chauffage C.C. au gaz
A
B
C C
D
E
F
G
