Vendu
Appartement RDC, 1 chambre avec terrasse et jardin! à ChÂtelineau
Rue de Montigny - 6200 CHÂTELINEAU
Voir sur carteRevenu cadastral : 359 €
CHÂTELINEAU - Rue de Montigny 180b : A proximité des facilités, appartement 1 chambre avec terrasse et jardin! Au rez-de-chaussée d\'une petite résidence de 2 unités, pas de charges communes, bel appartement 1 chambre de +/- 77m² comprenant hall d\'entrée, living, cuisine équipée (Taques vitro, hotte, four, lave-vaisselle), 1 chambre, salle de bain + wc, terrasse privative, jardin de +/- 70m2, cave. Commodités: Châssis DV PVC, chauffage central gaz (chaudière individuelle), installation électrique conforme jusqu\'au 19/05/2034, compteurs eau-gaz et électricité séparés. PEB D - 325 kwh/m²/an - CU: 20240214028657. PRIX : Faire offre à partir de 125.000 € (sous réserve d\'acceptation du propriétaire).
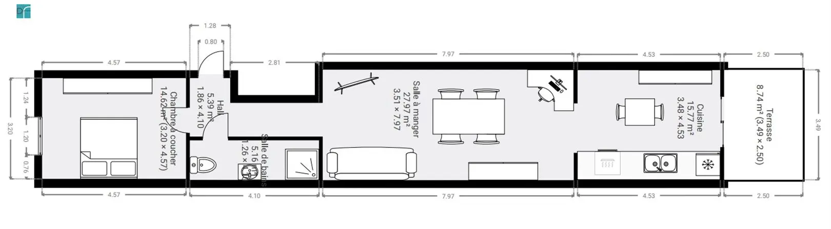
Rez-de-chaussée
Hall d\'entrée Superficie: 5,4m²
Living 8,0m x 3,5m = 28,0m²
Cuisine 4,5m x 3,5m = 15,8m²
Chambre à coucher 4,6m x 3,2m = 14,6m²
Salle de douche 4,1m x 5,2m = 21,2m²
Caractéristiques
Bel appartement RDC dans petite résidence de 2 unités
Pas de charges communes
Châssis DV PVC
Chauffage central gaz (chaudière individuelle de 2009)
Installation électrique conforme jusqu\'au 19/05/2034
Compteurs eau-gaz et électricité séparés
Terrasse privative et jardin
- Chambre(s) 1
- Salle(s) de douche 1
- WC(s) 1
- Grenier Non
- Chauffage C.C. au gaz
- Cuisine Armoires et appareils
- Vitrage Double
- Avec bureau Non
- Ascenseur Non
- Surface habitable 77 m²
- Surface du living 32 m²
- Code unique 20240214028657
- Energie spécifique (kWh/m²/an) 325
- Energie totale (kWh/an) 25019
- Type de chauffage C.C. au gaz
A
B
C
D D
E
F
G
