Vendu
Appartement neuf de 2 chambres avec terrasse !! à Fleurus
Chaussée de Charleroi - 6220 FLEURUS
Voir sur carte
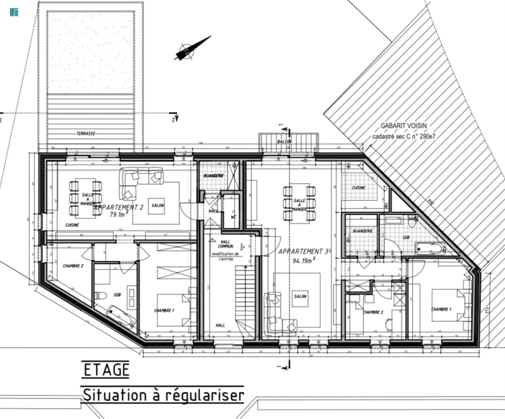
FLEURUS - Chaussée de Charleroi 419 : Bel appartement de 79 m² (surface plateau) situé dans un immeuble neuf en plein centre de Fleurus et de ses facilitées (gare, aéroport, commerces, écoles, grands axes, ... ) . Celui-ci se compose comme suit : Hall d\'entrée, wc séparé, vaste séjour avec cuisine ouverte (comprenant : four, taque, hotte et lave-vaisselle), buanderie, 2 chambres, salle de bains terminée. Le bien dispose également d\'une grande terrasse. D\'un point de vue technique : Chauffage collectif au gaz, compteurs eau et électrique individuel (l\'appartement sera entièrement raccordé), châssis double vitrage en PVC, isolant phonique entre les étages, système de ventilation dans la salle de bains et les wc, parlophone. Le bien dispose également d\'une cave privative, ainsi que d\'une place de parking pour 10.000 euros supplémentaire. Appartement en cours de finition, disponible à l\'acte. PEB B (estimation, infos précises à venir) A ne pas manquer !!!! PRIX : 181.930 € HTVA (sauf offre supérieure et sous réserve d\'acceptation du propriétaire).
CARACTERISTIQUES :
- 4 appartements neufs,
- Entièrement terminés avec salle de bain et cuisine équipée !!
- Châssis DV en PVC avec aération,
- Chauffage collectif au gaz,
- Compteur électrique bi-horaire,
- Système de ventilation dans les salles de bains et les wc,
- Parlophone,
- Compteurs eau et électrique séparés,
- Isolant phonique entre les étages,
- Wc suspendu
- Emplacement de parking privatif pour 10.000 euros,
- Cave privative.
COMPOSITION :
Étage 1
Hall d\'entrée ,9m x 1,7m = 1,6m²
WC 1,7m x ,8m = 1,4m²
Buanderie 2,0m x 1,5m = 3,0m²
séjour 7,6m x 4,0m = 30,0m²
Chambre à coucher 4,9m x 2,6m = 12,7m²
Chambre à coucher 2,7m x 1,9m = 5,0m²
Hall de nuit ,9m x 2,2m = 2,0m²
- Chambre(s) 2
- Salle(s) de bains 1
- WC(s) 2
- Grenier Non
- Chauffage C.C. au gaz
- Cuisine hyper-équipée
- Vitrage Double
- Avec bureau Non
- Ascenseur Non
- Surface habitable 79 m²
- Energie spécifique (kWh/m²/an) 100
- Type de chauffage C.C. au gaz
A
B B
C
D
E
F
G
