Vendu
Magnifique appartement neuf de deux chambres !! à Fleurus
Chaussée de Charleroi - 6220 FLEURUS
Voir sur carte
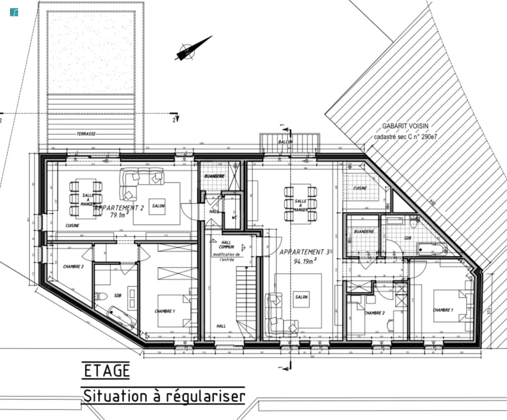
FLEURUS - Chaussée de Charleroi 419 : Bel appartement de 94.19 m² (surface plateau) de situé dans un immeuble neuf en plein centre de Fleurus et de ses facilitées (gare, aéroport, commerces, écoles, grands axes, ... ) . Celui-ci se compose comme suit : vaste séjour avec cuisine ouverte (comprenant : four, taque, hotte, raccordement pour un frigo américain et lave-vaisselle), buanderie ou bureau, 2 chambres, salle de bains terminée. D\'un point de vue technique : Chauffage collectif au gaz, compteurs eau et électrique individuel (l\'appartement sera entièrement raccordé), châssis double vitrage en PVC, isolant phonique entre les étages, système de ventilation dans la salle de bains et les wc, parlophone et un balcon bien exposé. Le bien dispose également d\'une cave privative, ainsi que d\'une place de parking pour 10.000 euros supplémentaire. Appartement en cours de finition, disponible à l\'acte. PEB B (estimation, infos précises à venir) A ne pas manquer !!!! PRIX : FAIRE OFFRE A PARTIR DE 189.000 € HTVA (sauf offre supérieure et sous réserve d\'acceptation du propriétaire).
CARACTERISTIQUES :
- 4 appartements neufs,
- Entièrement terminés avec salle de bain et cuisine équipée !!
- Balcon
- Châssis DV en PVC avec aération,
- Chauffage collectif au gaz,
- Compteur électrique bi-horaire,
- Système de ventilation dans les salles de bains et les wc,
- Parlophone,
- Compteurs eau et électrique séparés,
- Isolant phonique entre les étages,
- Wc suspendu
- Emplacement de parking privatif pour 10.000 euros,
- Cave privative.
COMPOSITION :
Étage 1
séjour 9,0m x 4,0m = 35,9m²
Cuisine 2,4m x 2,6m = 6,2m²
Hall de nuit 3,1m x 1,1m = 3,4m²
Chambre à coucher 3,1m x 2,9m = 8,8m²
Bureau 1,6m x 2,1m = 3,4m²
Salle de bains 3,0m x 3,0m = 8,9m²
Chambre à coucher 3,2m x 4,1m = 13,1m²
- Chambre(s) 2
- Salle(s) de bains 1
- WC(s) 2
- Grenier Non
- Chauffage C.C. au gaz
- Cuisine Tout encastré
- Vitrage Double
- Avec bureau Non
- Ascenseur Non
- Surface habitable 94 m²
- Energie spécifique (kWh/m²/an) 99
- Type de chauffage C.C. au gaz
A
B B
C
D
E
F
G
