Vendu
Appartement récent 2 chambres - au coeur du centre ville à Fleurus
Place Charles Gailly - 6220 FLEURUS
Voir sur carteRevenu cadastral : 606 €
FLEURUS - Place Charles Gailly 1/3 : Superbe appartement récent, situé au 2ème étage d\'un immeuble érigé au centre de la ville vous offrant toutes les commodités à proximité (transports en communs, commerces, écoles, axes autoroutiers, ..). Il se compose d\'un hall, séjour, cuisine équipée (taque, hotte, four, frigo, évier, lave-vaisselle), salle de bains, WC séparé, deux chambres. D\'un point de vue technique : chauffage central gaz, chaudière individuelle VAILLANT, châssis double vitrage PVC avec système de ventilation, PEB C - 195 kwh/m²/an - CU: 20160113007774! Prix : FAIRE OFFRE A PARTIR DE 159.000€ (sous réserve de l\'acceptation du propriétaire)
Caractéristiques Principales :
Immeuble Rénové en 2015.
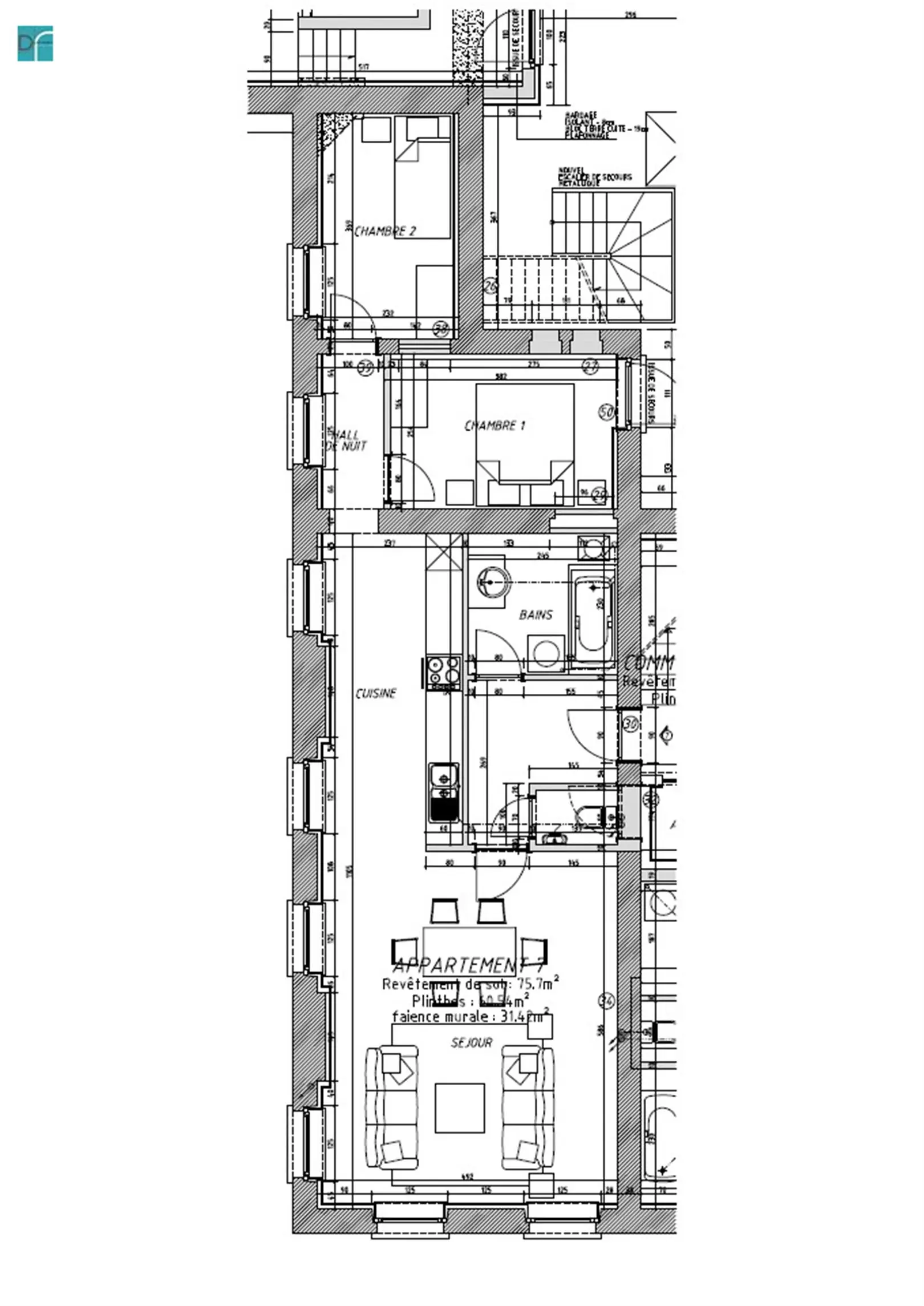
Copropriété de 10 appartements - appartement A7 situé au deuxième étage.
Chauffage central Gaz de ville - chaudière individuelle Vaillant.
Châssis Dv Pvc avec Aérateurs. Peb C: 195 kwh/m²an - code unique 20160113007774.
Ascenseurs. Parlophonie - Centrale incendie pour tous les appartements.
607/10.000 quotités des parties communes pour ce lot.
1/9 des parties communes spéciales relatives au ascenseurs.
Fonds de roulement positif, fond s de réserve également, pas de dettes à ce jour.
2 ème Étage
Hall d\'entrée 2,5m x 1,7m = 4,2m²
Salle de bains 2,5m x 2,3m = 5,6m²
sejour 5,9m x 4,9m = 28,8m²
Cuisine super-équipée 5,1m x 2,4m = 12,1m²
Chambre à coucher 2,5m x 3,8m = 9,7m²
Hall de nuit 2,5m x 1,1m = 2,8m²
Chambre à coucher 3,7m x 2,3m = 8,6m²
- Chambre(s) 2
- Salle(s) de bains 1
- WC(s) 1
- Grenier Non
- Chauffage C.C. au gaz
- Cuisine Armoires et appareils
- Vitrage Double
- Avec bureau Non
- Ascenseur Oui
- Surface habitable 76 m²
- Code unique 20160113007774
- Energie spécifique (kWh/m²/an) 195
- Energie totale (kWh/an) 19017
- Type de chauffage C.C. au gaz
A
B
C C
D
E
F
G

