OPTION! FLEURUS – Rue de la Station 38/1 : Situé en plein cœur de Fleurus, à deux pas de la gare et de toutes les commodités, bel appartement 2 chambres de ± 87 m² situé au 1er étage d\'une petite co-propriété (un rez avec bureaux et 2 appartements) comprenant un hall d’entrée, lumineux et spacieux living, cuisine équipée (tout sauf LV et MO), salle de bains avec espace buanderie et wc, 2 belles chambres (18 et 14m²). Commodités: Chauffage central gaz, châssis DV PVC, compteurs individuels, cave privative, 1 parking extérieur privatif, installation électrique conforme. Pas encore de charges communes (en attente de syndic). Appartement actuellement loué 720 €/mois. PEB C - 207 Kwh/m²/an - CU: 20160705018570. Prix: 165.000 € (sous réserve d\'acceptation de la propriétaire).
Caractéristiques
Appartement situé au 1er étage (pas d'ascenseur)
Chauffage central gaz
Châssis DV PVC
Compteurs individuels
Pas encore de charges communes (en attente de syndic)
1 parking extérieur privatif
Cave privative
Installation électrique conforme
Appartement loué 720 €/mois
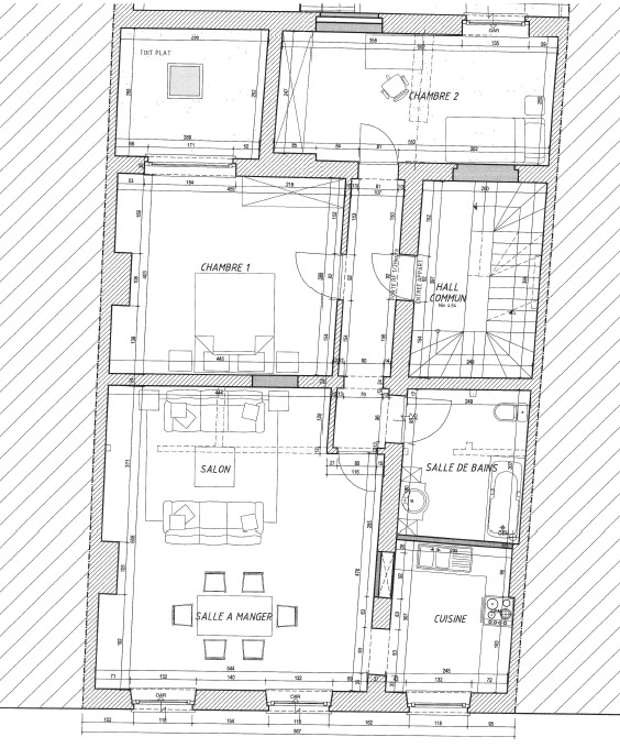
Premier étage
Hall d'entrée5,5m x 1,0m = 5,5m²
Living6,1m x 5,5m = 33,6m²
Cuisine équipée3,1m x 2,5m = 7,8m²
Chambre à coucher4,6m x 4,0m = 18,4m²
Chambre à coucher5,5m x 2,6m = 14,3m²
Salle de bains + wc3,0m x 2,6m = 7,8m²
- Chambre(s) 2
- Salle(s) de douche 1
- WC(s) 1
- Grenier Non
- Chauffage C.C. au gaz
- Cuisine Armoires et appareils
- Vitrage Double
- Avec bureau Non
- Ascenseur Non
- Surface habitable 87 m²
- Surface du living 33 m²
- Code unique 20160705018570
- Energie spécifique (kWh/m²/an) 207
- Energie totale (kWh/an) 21108
- Type de chauffage C.C. au gaz
A
B
C C
D
E
F
G
