FLEURUS – Rue de la Station 38/2 : Situé en plein cœur de Fleurus, à deux pas de la gare et de toutes les commodités, bel appartement Duplex 2 chambres de ± 110 m² situé au 2ème étage d\'une petite co-propriété (un rez avec bureaux et 2 appartements) comprenant un hall d’entrée, lumineux et spacieux living, cuisine équipée (tout sauf LV et MO), salle de douche + wc, une chambre de 16m², espace buanderie. A l\'étage, grande chambre de 22m², salle de bain avec baignoire et wc. Commodités: Chauffage central gaz, châssis DV PVC, compteurs individuels, cave privative, 1 parking extérieur privatif, installation électrique conforme. Pas encore de charges communes (en attente de syndic). Appartement loué 650 €/mois depuis le 08/03/2024. PEB G - 512 Kwh/m²/an - CU: 20160705018570. Prix: 175.000 € (sous réserve d\'acceptation de la propriétaire).
Caractéristiques
Appartement Duplex situé au 2ème étage (pas d\'ascenseur)
Chauffage central gaz
Châssis DV PVC
Compteurs individuels
Pas encore de charges communes (en attente de syndic)
Cave privative
1 parking extérieur privatif
Installation électrique conforme
Appartement loué depuis le 08/03/2024 --> 650 €/mois
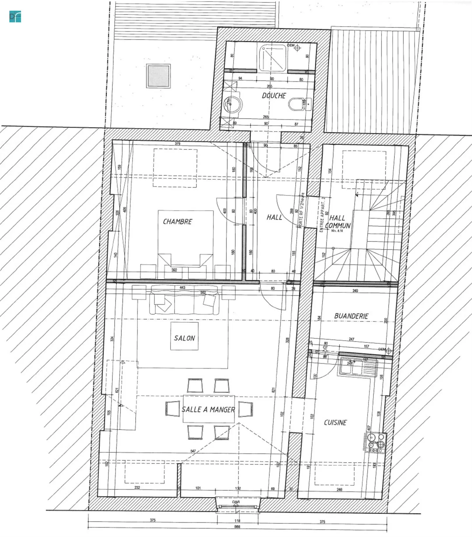
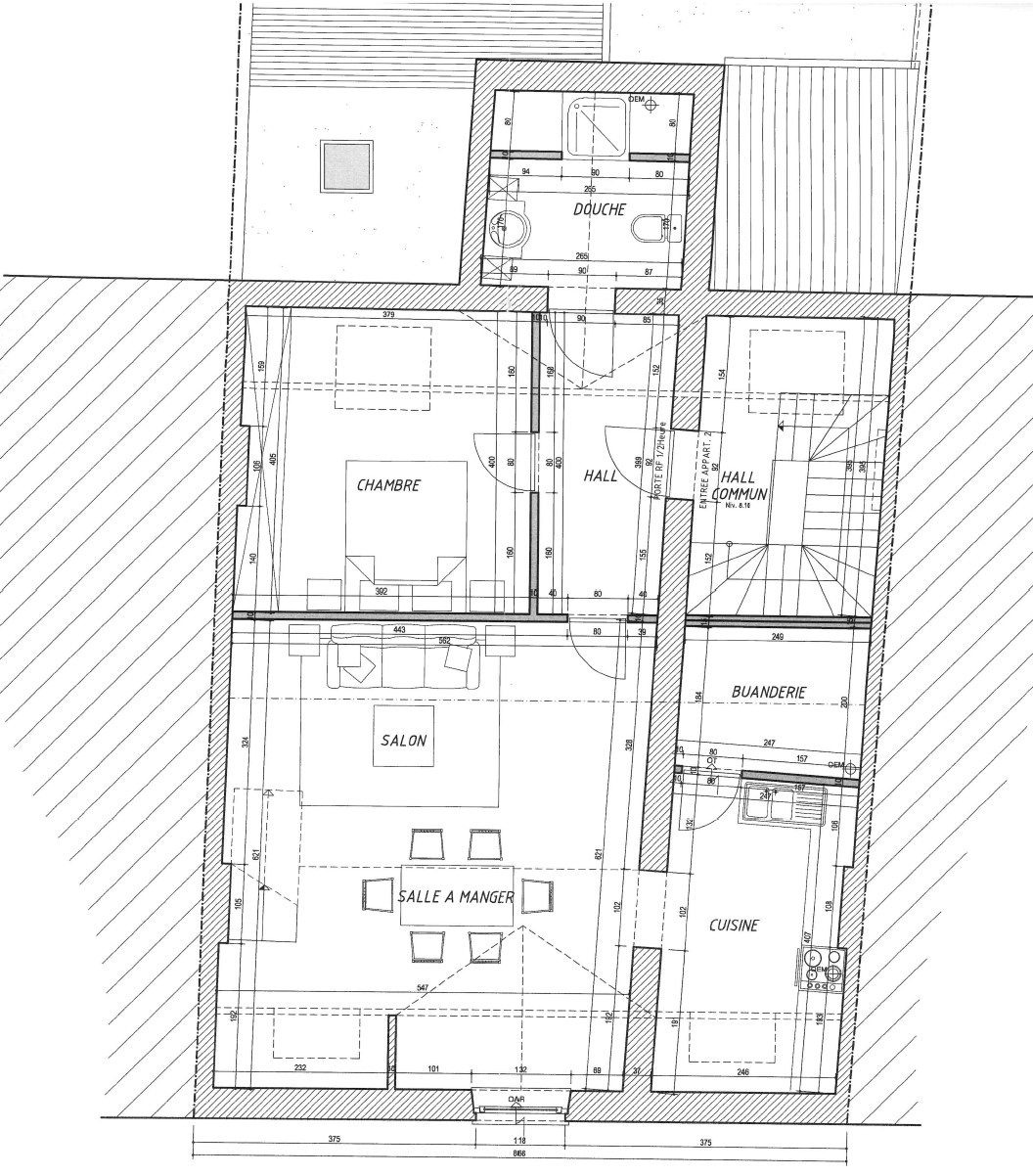
Composition
Deuxième étage
Hall d\'entrée 4,1m x 1,6m = 6,6m²
Living 6,3m x 5,7m = 35,9m²
Cuisine équipée 4,2m x 2,3m = 9,7m²
Chambre à coucher 4,0m x 4,0m = 16,0m²
Buanderie 2,6m x 1,8m = 4,7m²
Salle de douche + wc 2,6m x 2,5m = 6,5m²
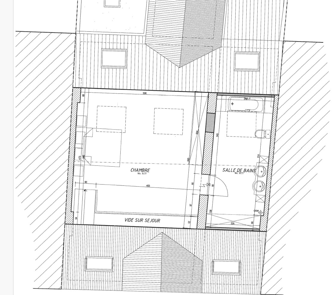
Troisième étage
Chambre à coucher 4,8m x 4,5m = 21,6m²
Salle de bains + wc 3,6m x 2,5m = 9,0m²
- Chambre(s) 2
- Salle(s) de bains 1
- Salle(s) de douche 1
- WC(s) 2
- Grenier Non
- Chauffage C.C. au gaz
- Vitrage Double
- Avec bureau Non
- Ascenseur Non
- Surface habitable 110 m²
- Surface du living 36 m²
- Code unique 20160705018570
- Energie spécifique (kWh/m²/an) 512
- Energie totale (kWh/an) 68234
- Type de chauffage C.C. au gaz
A
B
C
D
E
F
G G
