Vendu
Gros oeuvre fermé avec permis d'urbanisme pour la création de 2 appartements ! à Jumet
Chaussée de Gilly - 6040 JUMET
Voir sur carte
JUMET - Chaussée de Gilly 98 : Gros oeuvre fermé avec permis d\'urbanisme pour la création de 2 appartements ! Idéalement situé, ce gros oeuvre fermé de plus de 200m² offre la possibilité d\'y créer 2 appartements composé comme suit : au rez-de-chaussée : appartement 2 chambres de 89m² et au premier un duplex de 104.57 m² composé de 3 chambres. Un permis d\'urbanisme à été octroyé en 2021 pour ce projet, le bien dispose également d\'une nouvelle toiture, d\'une nouvelle plateforme et de nouvelles descentes d\'eau (en 2021) . A NE PAS MANQUER IDEAL POUR UN INVESTISSEUR PRIX : 175.000 € (sous réserve d\'acceptation des propriétaires-).
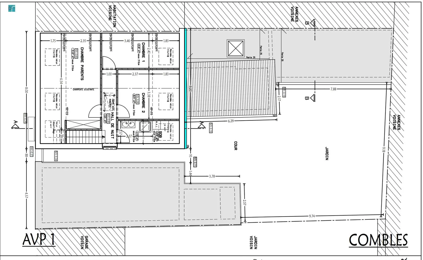
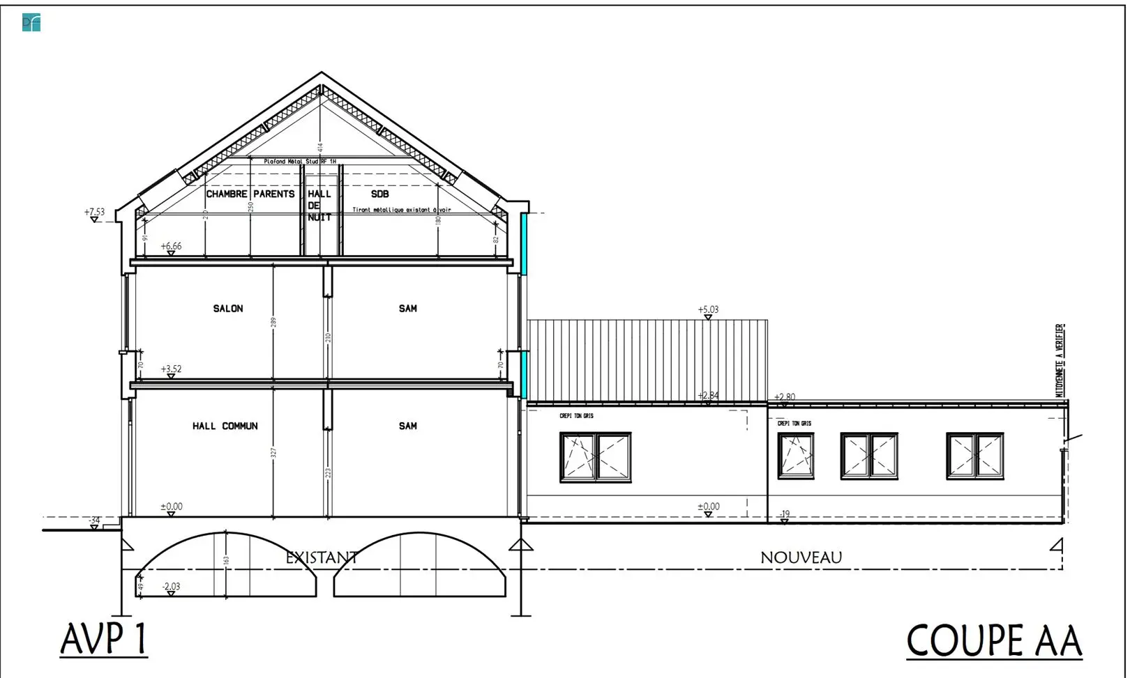
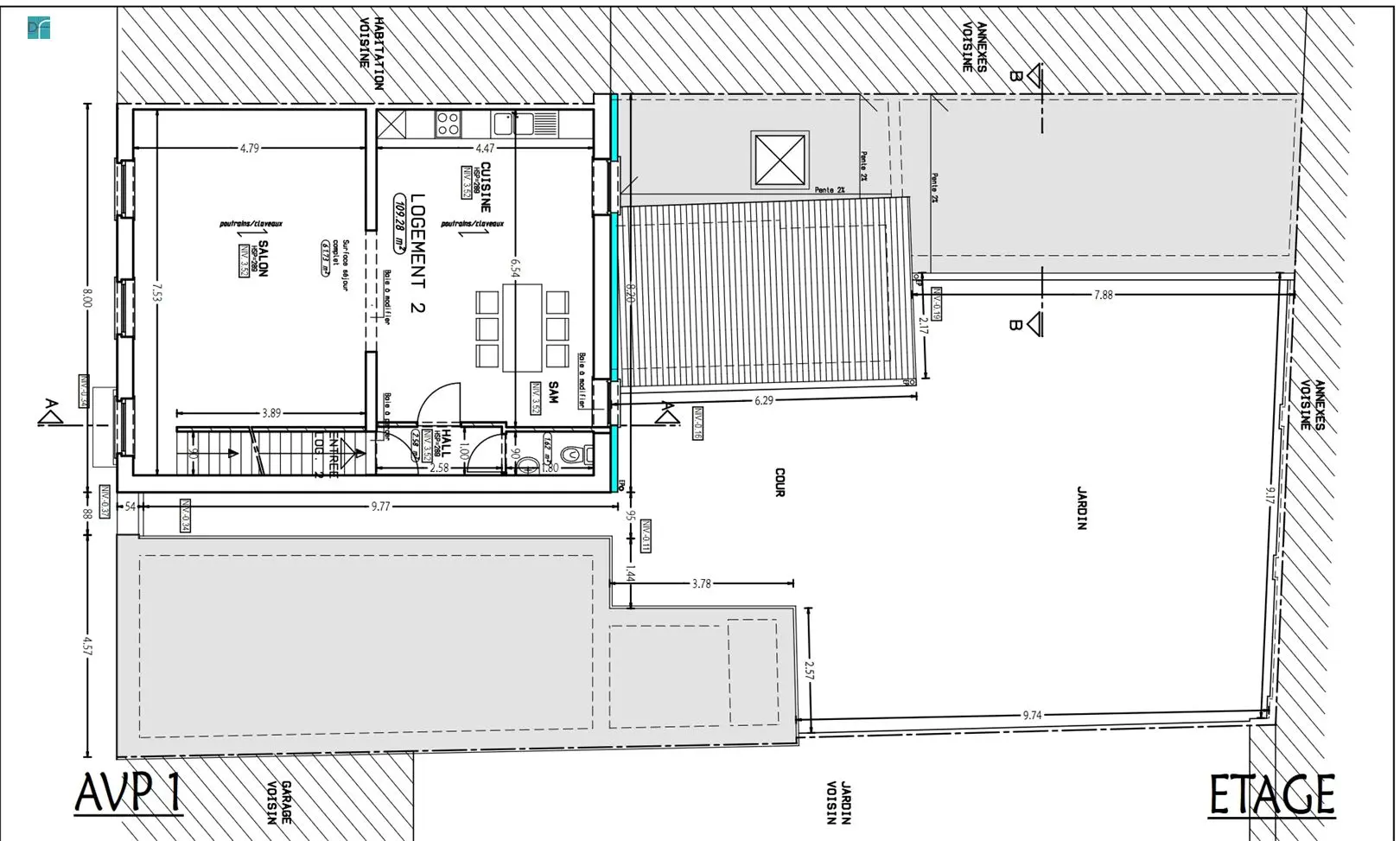
Gros oeuvre fermé de plus ou moins 200 m² avec permis octroyé en 2021 pour la construction de 2 appartements,
- Au rez-de-chaussée : appartement de de 2 chambres de 90 m²
- Au deuxième : duplex de 3 chambres de 104.47 m²
!! Toutes les toitures sont neuves (de 2021) ainsi que les descentes d\'eau !!!
- Chambre(s) 5
- Grenier Non
- Avec bureau Non
- Ascenseur Non
- Surface habitable 200 m²
