Option
OPTION! Maison neuve CLEF SUR PORTE - Basse énergie à Arsimont
Rue de Fer - 5060 ARSIMONT
Voir sur carte
OPTION! ARSIMONT - Rue de fer (à côté du n° 26): Dans une rue calme, maison 2 façades neuve, entièrement terminée (libre à l\'acte) composée au rez d\'un hall d\'entrée, wc séparé, bureau, chambre parentale avec salle de douche, espace buanderie. Au rez-de-jardin, lumineux séjour avec cuisine équipée ouverte et réserve. 1er étage: hall de nuit distribuant 2 chambres, une salle de bain et un wc séparé. Commodités: Maison basse énergie entièrement terminée, châssis DV en PVC, chauffage central au gaz (chaudière condensation), toiture en ardoises artificielles, citerne d\'eau de pluie + groupe hydrophore, pré câblage pour installation photovoltaïque, VMC simple flux. Aménagements extérieurs terminés (parkings, terrasses et clôtures). Vente sous régime TVA (21%). PEB B. Prix: 299.000 €
Caractéristiques
Maison 2 façades basse énergie
Entièrement terminée
Châssis DV en PVC
Chauffage central au gaz (chaudière condensation)
Toiture en ardoises artificielles
Citerne d\'eau de pluie + groupe hydrophore
Pré câblage pour installation photovoltaïque
VMC simple flux
Sanitaires et cuisine inclus dans le prix de vente
Aménagements extérieurs terminés (parkings, terrasses
et clôtures)
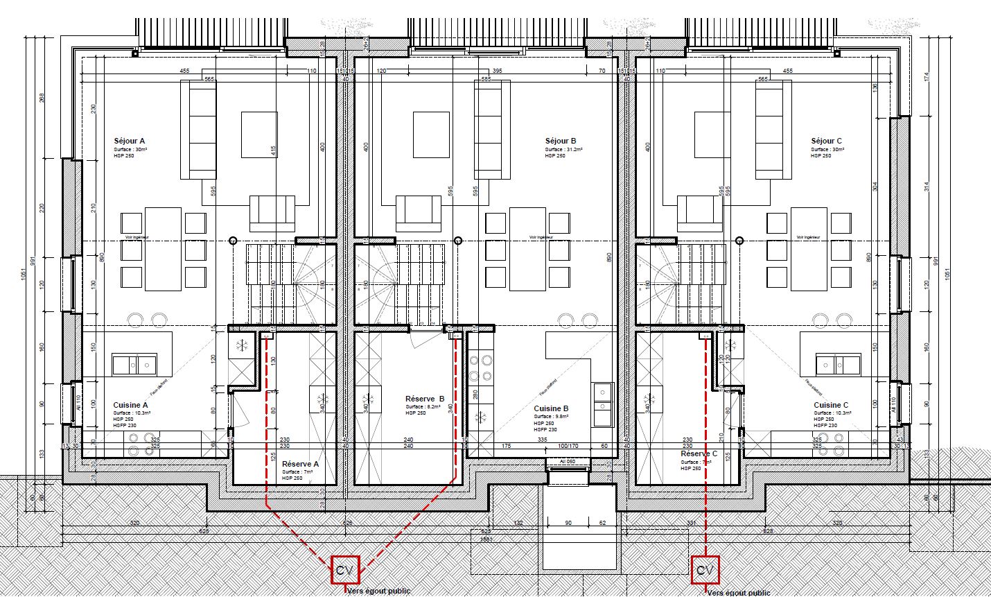
Rez-de-chaussée
Hall d\'entrée Superficie: 10,2m²
WC séparé Superficie: 2,0m²
Bureau Superficie: 8,2m²
Chambre à coucher Superficie: 15,8m²
Salle de douche Superficie: 7,2m²
Buanderie Superficie: 4,1m²
Rez-de-jardin
Living Superficie: 31,2m²
Cuisine équipée Superficie: 9,8m²
Réserve Superficie: 8,2m²
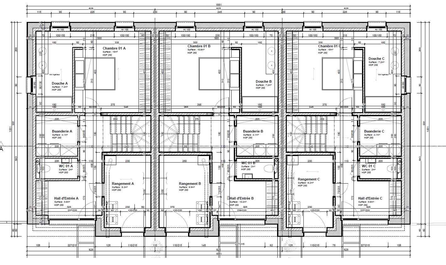
Étage 1
Hall de nuit Superficie: 4,0m²
Chambre à coucher Superficie: 21,1m²
Chambre à coucher Superficie: 17,7m²
Salle de bains Superficie: 6,0m²
WC séparé Superficie: 2,0m²
- Chambre(s) 3
- Salle(s) de bains 2
- WC(s) 2
- Grenier Non
- Chauffage C.C. au gaz
- Cuisine Entièrement équipée
- Vitrage Double
- Avec bureau Non
- Ascenseur Non
- Surface habitable 148 m²
- Surface du living 31 m²
- Energie spécifique (kWh/m²/an) 100
- Type de chauffage C.C. au gaz
A
B B
C
D
E
F
G
