Vendu
OPTION Maison rénovée, 2 chambres, jardin à ChÂtelet
Rue Grégoire Chermanne - 6200 CHÂTELET
Voir sur carteRevenu cadastral : 464 €
OPTION CHATELET : Rue Grégoire Chermanne 11: Nous vous présentons cette maison 2 façades située dans une rue calme rénovée récemment. Elle se compose comme suit ; living, salle à manger ouverte sur la cuisine, salle de douche avec WC, buanderie. Au premier étage nous retrouvons deux spacieuses chambres. Grand grenier aménageable. Commodités : châssis double vitrage PVC, chauffage central gaz de ville, installation électrique conforme jusqu\'en 2037, terrasse et jardin, possibilité de bénéficier des droits d\'enregistrement réduits. PEB E - 359 kWh/m².an - CU : 20230718005923. Prix : Faire offre à partir de 170.000 € (sous réserve d\'acceptation des propriétaires).
Caractéristiques :
- Maison deux façades rénovée
- Installation électrique conforme jusqu\'en 2037
- Chauffage central gaz de ville
- 2 chambres et grenier aménageable
- Terrasse et jardin
Composition :
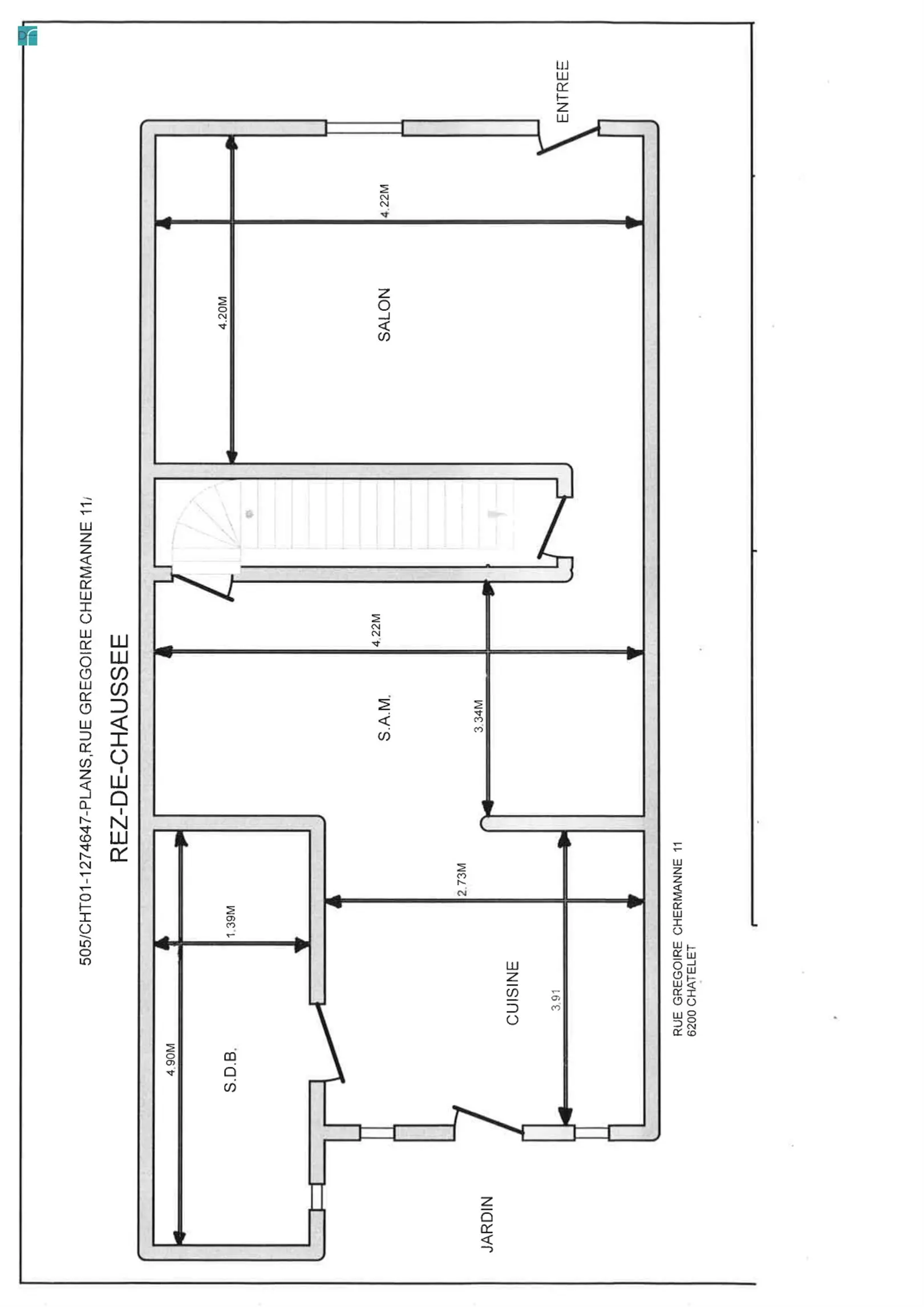
Rez-de-chaussée
salon 4,2m x 4,2m = 17,7m²
Salle à manger 4,2m x 3,3m = 14,1m²
Cuisine 3,9m x 2,7m = 10,7m²
Salle de bains 4,9m x 1,4m = 6,8m²
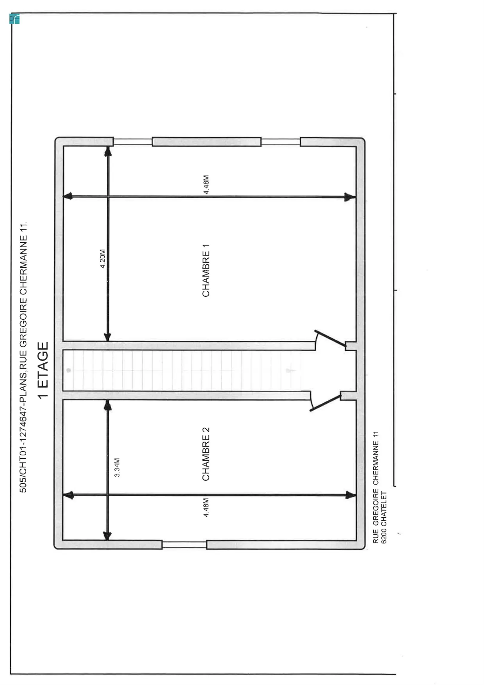
Étage 1
Chambre à coucher 4,5m x 3,3m = 15,0m²
Chambre à coucher 4,5m x 4,2m = 18,8m²
Étage 2
Grenier 7,0m x 4,5m = 31,4m²
- Chambre(s) 2
- Salle(s) de bains 1
- WC(s) 1
- Grenier Oui
- Chauffage C.C. au gaz
- Cuisine Armoires et appareils
- Vitrage Double
- Avec bureau Non
- Ascenseur Non
- Surface habitable 118 m²
- Surface du living 24 m²
- Code unique 20230718005923
- Energie spécifique (kWh/m²/an) 359
- Energie totale (kWh/an) 39623
- Emission CO2 (kg CO2/m²/an) 66
- Type de chauffage C.C. au gaz
A
B
C
D
E E
F
G
