Option
Maison kangourou avec 5 chambres à Couillet
Rue du Village - 6010 COUILLET
Voir sur carteRevenu cadastral : 795 €
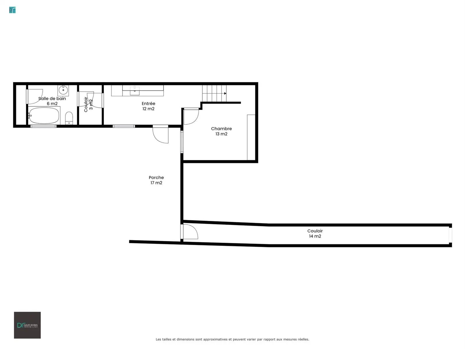
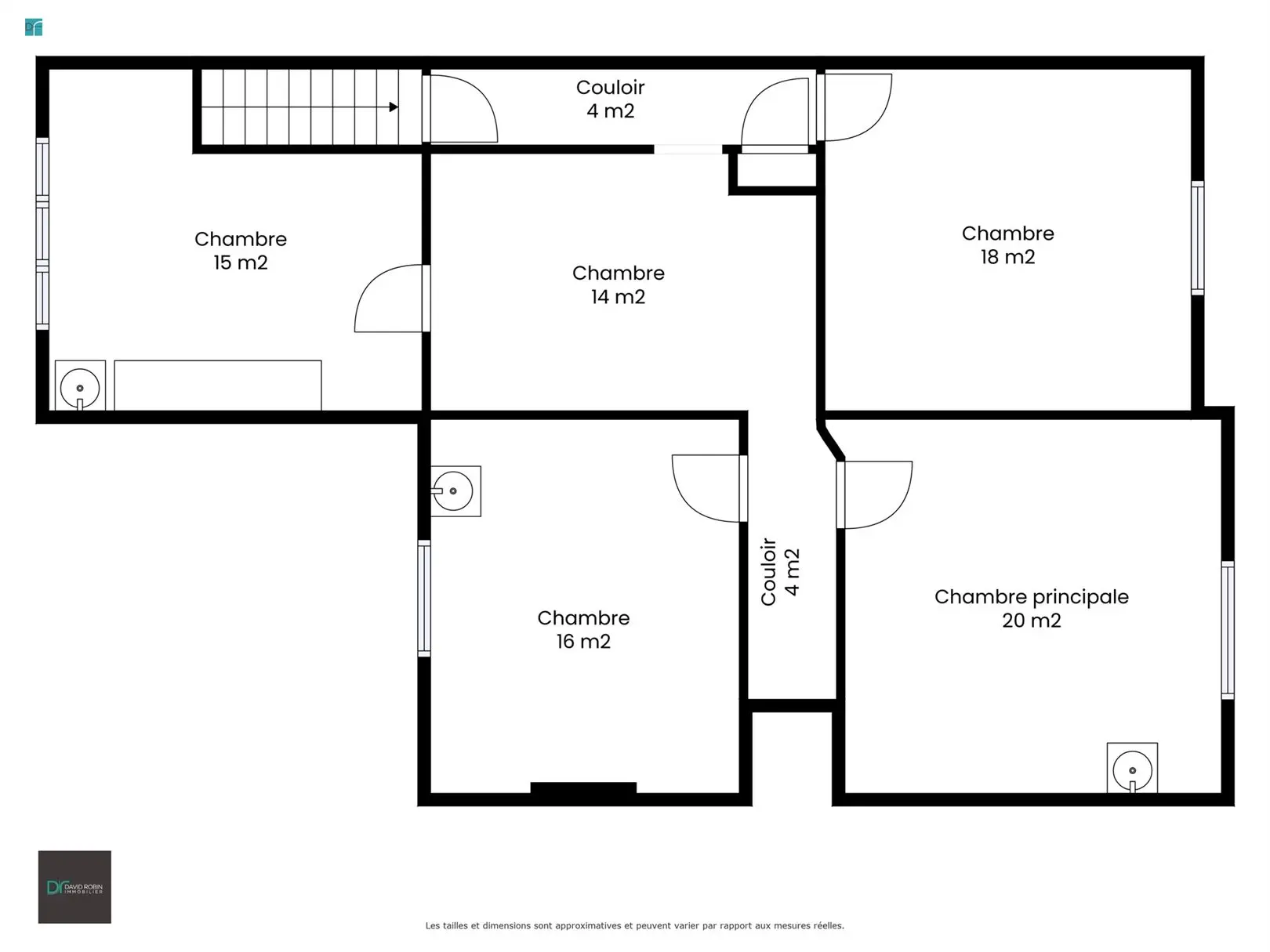
COUILLET – Rue du Village 35/37 : Découvrez ces 2 maisons situées à Couillet, offrant une surface habitable total de 188 m². 2 numéros donc déja divisé en 2 habitations. Cette propriété spacieuse dispose de cinq chambres, idéales pour une grande famille, ou offre la possibilité de louer l’un des deux logements, ce qui en fait un bien intéressant pour un investisseur. Elle se compose, pour le numéro 37, au rez-de-chaussée : d’un hall d’entrée avec salle de douche et WC, d’une réserve, d’une cuisine équipée, d’une première chambre de 17 m², d’un séjour lumineux et d’une terrasse avec jardin. Pour le numéro 35, au rez-de-chaussée : entrée séparée donnant sur la partie jardin, cuisine équipée, salle de bains avec WC, et salle à manger. À l’étage : quatre grandes chambres (17, 17, 18 et 20 m²) et un salon. Grenier aménageable sur toute la superficie, offrant un potentiel d’agrandissement important. D’un point de vue technique : chauffage central au gaz de ville et au mazout, boiler, châssis en PVC double vitrage, volets. Raccordé aux égouts. PEB : C (249 kWh/m².an – Réf. : 20250711022116) et F (499 kWh/m².an – Réf. : 20250711021917) Prix : Faire offre à partir de 280.000 €, sous réserve d’acceptation du vendeur. Mesures intramuros.
Caractéristiques :
- Toiture restaurée en 2018
- Châssis double vitrage pvc
- Volets
- Chauffage au gaz (n37) et au mazout + boiler (n35)
- 2 entrées
- Raccordé aux égouts
Descriptif :
Rez-de-chaussée
Hall d\'entrée 5,6m x 1,6m = 9,0m²
Salle de douche 1,9m x 3,5m = 6,7m²
Buanderie 2,1m x 1,4m = 2,9m²
Chambre à coucher 4,6m x 3,7m = 17,0m²
salon 3,5m x 4,5m = 15,8m²
Salle à manger 3,0m x 4,7m = 14,1m²
Cuisine équipée 3,5m x 4,3m = 15,1m²
Cuisine équipée 1,6m x 3,8m = 6,1m²
Salle de bains 1,7m x 2,6m = 4,4m²
Salle à manger 4,2m x 2,9m = 12,2m²
Premier étage
Chambre à coucher 4,0m x 4,5m = 18,0m²
Chambre à coucher 4,5m x 4,4m = 19,8m²
Chambre à coucher 4,5m x 3,8m = 17,1m²
salon 3,0m x 4,5m = 13,5m²
Chambre à coucher 4,0m x 4,2m = 16,8m²
- Chambre(s) 5
- Salle(s) de bains 1
- Salle(s) de douche 1
- WC(s) 2
- Grenier Oui
- Chauffage C.C. au gaz
- Cuisine Entièrement équipée
- Vitrage Double
- Avec bureau Non
- Ascenseur Non
- Surface habitable 188 m²
- Code unique 20250711022116
- Energie spécifique (kWh/m²/an) 249
- Energie totale (kWh/an) 24359
- Type de chauffage C.C. au gaz
A
B
C C
D
E
F
G
