Vendu
Maison à Fleurus
Revenu cadastral : 1.380 €
Chemin de Mons 54 - FLEURUS : Nous vous présentons cette superbe villa qui a bénéficié d\'une rénovation complète avec des matériaux de qualité, offrant un espace de vie luxueux et confortable.
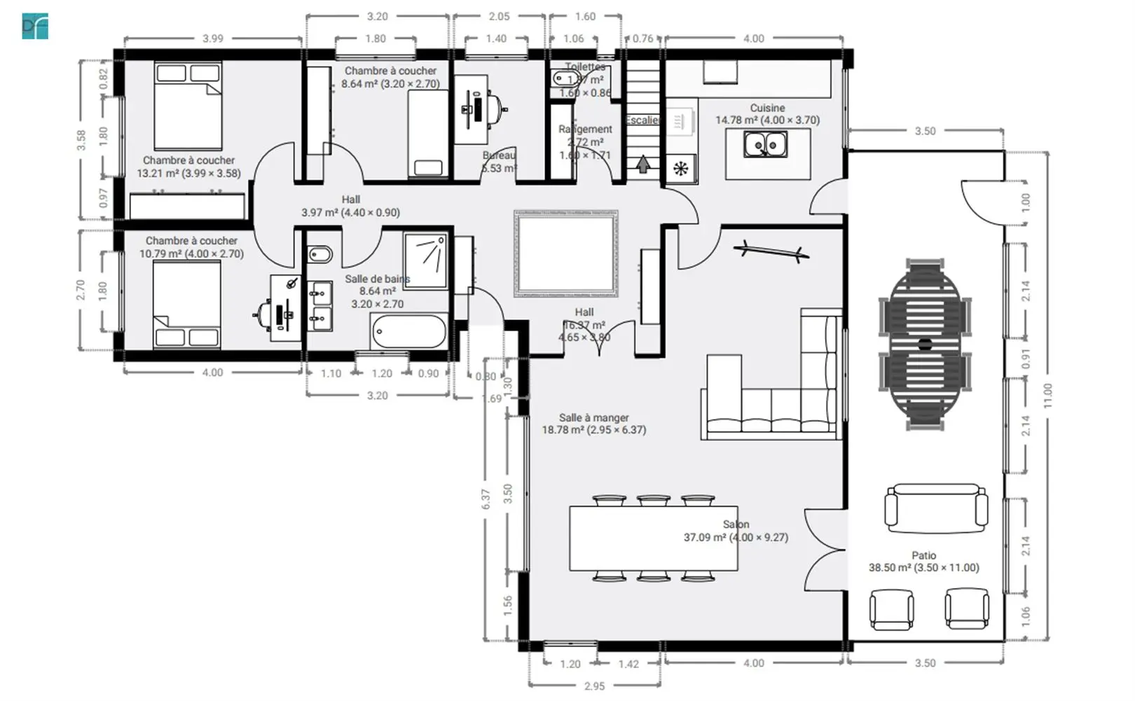
Au rez-de-chaussée: vaste hall d\'entrée, salon de 50m², baigné de lumière naturelle et s\'ouvrant sur une véranda de 37m². La cuisine est entièrement équipée, Un bureau, idéal pour le télétravail, et une toilette pour les invités . Trois chambres, une salle de bain (baignoire et douche à l\'italienne).
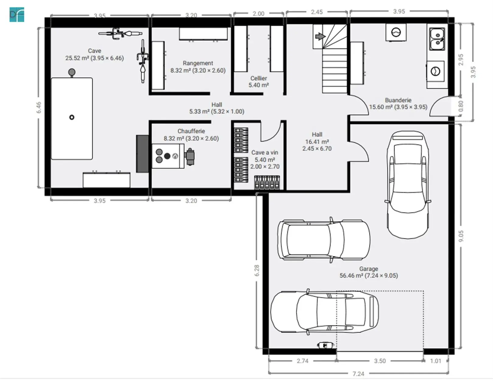
Le jardin, orienté plein sud et sans vis-à-vis, est un véritable havre de paix. Une piscine chauffée de 11x6m, alimentée par une pompe à chaleur, invite à la détente et aux loisirs en plein air. Tandis que l\'éclairage intégré crée une ambiance magique, parfaite pour les soirées d\'été.Le sous-sol offre encore plus d\'espace et de fonctionnalités. Un grand garage pour trois voitures, ainsi qu\'une borne de recharge pour voiture électrique. Une cave à vin, des espaces de rangement variés, une buanderie.
Au premier étage, les combles ont déjà été partiellement aménagés, avec l\'électricité et la plomberie prêtes à recevoir environ 80m² supplémentaires de chambres et de salles de bains. Cette flexibilité d\'aménagement offre un potentiel d\'expansion pour répondre aux besoins futurs de la famille. La maison est également équipée de panneaux photovoltaïques. De plus, une citerne d\'eau de pluie de 50 000 litres. PEB D - 288 kwh/m²/an - CU: 2024030814315 PRIX : 545.000 € - Sauf meilleure offre (sous réserve d\'acceptation du propriétaire).
Cave
Buanderie 4,0m x 4,0m = 15,6m²
Garage Superficie: 56,0m²
Hall d\'entrée 6,7m x 2,5m = 16,4m²
Cellier 2,7m x 2,0m = 5,4m²
cave à vin 2,7m x 2,0m = 5,4m²
réserve 3,2m x 2,6m = 8,3m²
Chaudière 3,2m x 2,6m = 8,3m²
Cave 6,3m x 4,0m = 24,9m²
Rez-de-chaussée
Hall d\'entrée 4,7m x 3,8m = 17,7m²
Salle à manger 6,5m x 3,0m = 19,2m²
Living 9,1m x 4,0m = 36,4m²
Cuisine super-équipée 4,0m x 4,0m = 16,0m²
Débarras 1,7m x 1,6m = 2,7m²
WC 1,7m x 1,0m = 1,7m²
Bureau 2,7m x 2,1m = 5,5m²
Chambre à coucher 3,2m x 2,7m = 8,6m²
Salle de douche 3,2m x 2,7m = 8,6m²
Chambre à coucher 4,0m x 3,8m = 15,2m²
Chambre à coucher 4,0m x 2,7m = 10,8m²
Véranda 11,0m x 3,5m = 38,5m²
Étage 1
Grenier aménageable Superficie: 80,0m²
- Chambre(s) 3
- Salle(s) de bains 1
- WC(s) 3
- Grenier Oui
- Chauffage C.C. au mazout
- Cuisine Entièrement équipée
- Vitrage Double
- Avec bureau Non
- Ascenseur Non
- Surface habitable 185 m²
- Surface du living 50 m²
- Code unique 2024030814315
- Energie spécifique (kWh/m²/an) 288
- Energie totale (kWh/an) 47979
- Type de chauffage C.C. au mazout
A
B
C
D D
E
F
G
