Vendu
Maison 2 façades dans le centre de Fleurus à Fleurus
Rue Emile Vandervelde - 6220 FLEURUS
Voir sur carte
FLEURUS - Rue Emile Vandervelde 36: Charmante maison de ville proche de toutes commodités (commerces, transports en commun,..), elle se compose au sous-sol de cave, au rez : salon, salle à manger, nouvelle cuisine équipée, salle de bain; à l\'étage : 2 grandes chambres; autre étage : une chambre et un grenier de rangement. Chauffage central gaz, châssis double vitrage bois, terrasse, jardin, remise. PEB : D pour 283 kWh/m² par an - CU : 20250307011572. A voir ! Prix: Faire offre à partir de 140.000 € (sous réserve de l\'acceptation des propriétaires). Contactez David robin immobilier au 071/81.08.88 pour planifier votre visite.
CACTERISTIQUES :
- Située au centre-ville
- Chauffage central au gaz de ville
- Châssis double vitrage
- Cour
- Jardin
- Remise
Rez-de-chaussée
Living 5,0m x 3,6m = 18,2m²
sejour 3,6m x 4,7m = 17,2m²
Cuisine 3,7m x 2,6m = 9,7m²
Salle de bains 1,9m x 3,0m = 5,8m²
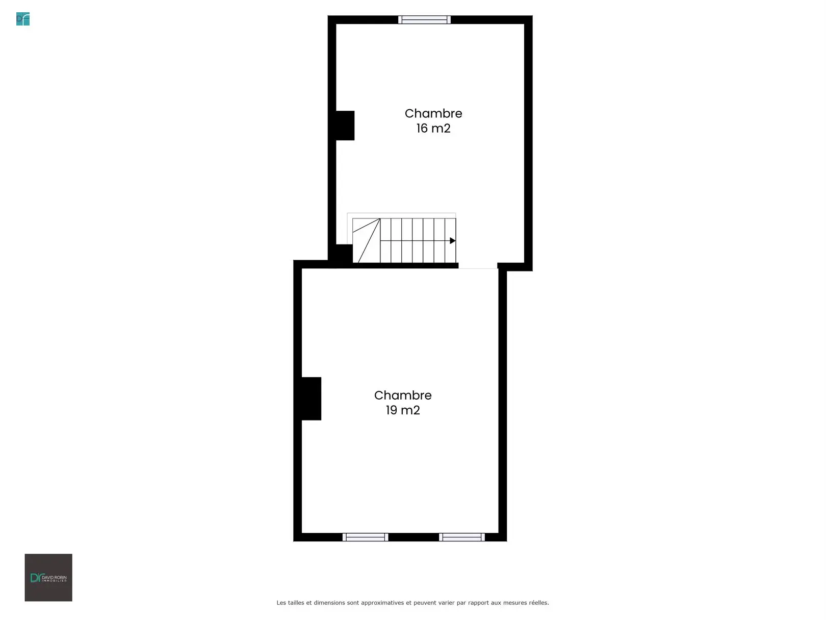
Étage 1
Chambre à coucher 4,8m x 3,9m = 18,6m²
Chambre à coucher 3,6m x 5,0m = 18,2m²
- Chambre(s) 2
- Salle(s) de bains 1
- WC(s) 1
- Grenier Oui
- Chauffage C.C. au gaz
- Vitrage Double
- Avec bureau Non
- Ascenseur Non
- Surface habitable 115 m²
- Code unique 20250307011572
- Energie spécifique (kWh/m²/an) 283
- Energie totale (kWh/an) 34624
- Type de chauffage C.C. au gaz
A
B
C
D D
E
F
G
