Maison 3 façades avec jardin à Fleurus
Chaussée de Gilly - 6220 FLEURUS
Voir sur carteRevenu cadastral : 327 €
FLEURUS- Chaussée de Gilly 198, belle maison 3 façades entièrement rénovée offrant de beaux volumes et un excellent confort. Elle se compose de 2 grandes chambres de 17,3 m² et 20,3 m², d’un agréable espace de vie comprenant salon et salle à manger, ainsi que d’une cuisine équipée spacieuse et lumineuse de 14,7 m². La maison dispose de châssis double et triple vitrage et d’un chauffage central au gaz. PEB : C (241 kWh/m²/an), CU 20260209035242. PRIX: 270.000€ (sous réserve d\'acceptation des propriétaires) Pour plus d’informations ou une visite, contactez le 071/810.888.
CARACTERISTIQUES:
- Belle maison 3 façades
- 2 grandes chambres
- châssis double et triple vitrage
- chauffage central au gaz
- entièrement rénovée
DESCRIPTIF:
Sous-sol: caves
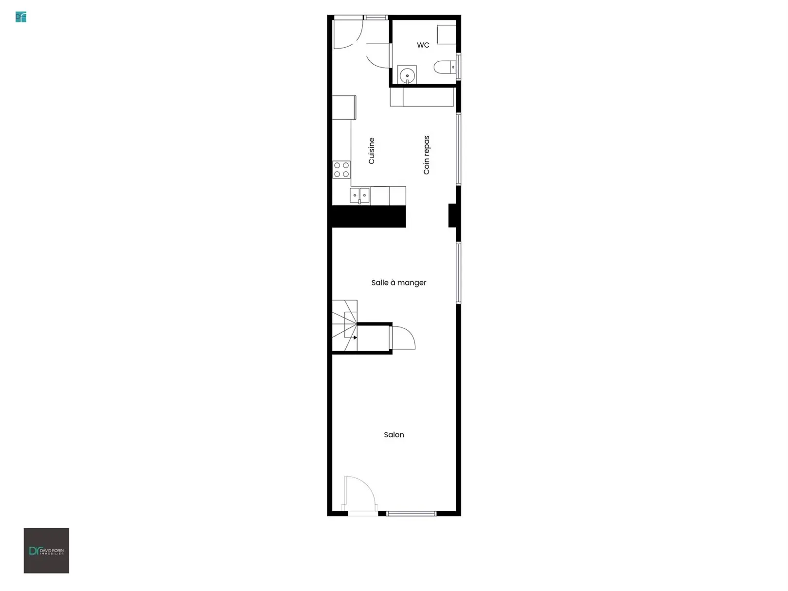
Rez-de-chaussée
salon 4,3m x 3,9m = 16,5m²
Salle à manger 4,0m x 3,2m = 12,8m²
Cuisine équipée 3,7m x 4,0m = 14,7m²
Buanderie 2,0m x 1,9m = 3,8m² ( + WC )
Premier étage
Chambre à coucher 4,6m x 3,8m = 17,3m²
Salle de douche 2,4m x 3,8m = 9,3m²
Deuxième étage
Chambre à coucher 5,4m x 3,8m = 20,3m²
- Chambre(s) 2
- Salle(s) de douche 1
- WC(s) 2
- Grenier Non
- Chauffage C.C. au gaz
- Cuisine Entièrement équipée
- Vitrage Double
- Avec bureau Non
- Ascenseur Non
- Surface habitable 95 m²
- Code unique 20260209035242
- Energie spécifique (kWh/m²/an) 241
- Energie totale (kWh/an) 35831
- Emission CO2 (kg CO2/m²/an) 44
- Type de chauffage C.C. au gaz
A
B
C C
D
E
F
G
