Maison 3 façades avec garage à Fleurus
Rue de Wangenies - 6220 FLEURUS
Voir sur carteRevenu cadastral : 490 €
FLEURUS - Rue de Wangenies 31 : A proximité des grands axes et des commodités, spacieuse maison 3 façades à rénover. Composition : Sous-sols : Caves. RDC : hall d\'entrée, living, salle à manger, cuisine, réserve. 1er étage : Salle de bain entièrement rénovée Hall de nuit et 2 chambres. Possibilité d\'aménager le grenier en 2 chambres supplémentaires. Commodités : châssis double vitrage, raccordement égout, garage, jardin, nouvelle toiture. PEB : F - 467 kWh/m².an CU = 20210827015024. Une partie des travaux a déjà été réalisée. Prix: 149.500 € (sous réserve de l\'acceptation des propriétaires.). Pour plus d\'informations ou un rendez-vous contactez le 071/810.888
CARECTERISTIQUES:
- Maison 3 façades
- 2 chambres possibilité de 3 supplémentaires
- Une partie des travaux déjà réalisée
- Châssis double vitrage
- Nouvelle salle de bain entièrement rénovée
- Nombreuses possibilités d\'aménagements
- Nouvelle toiture et charpente
- De nombreux matériaux compris dans la vente
- Pas de système de chauffage (compteur à gaz déjà présent)
DESCRIPTIF:
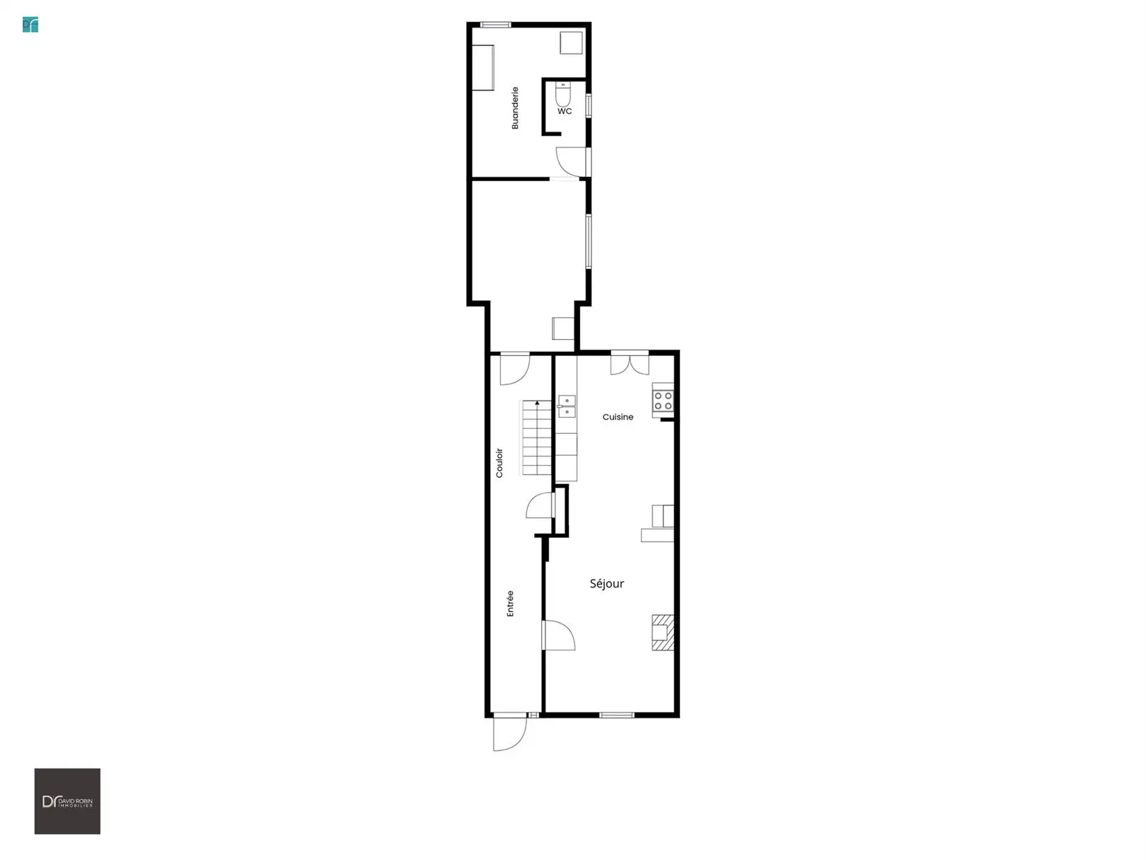
Rez-de-chaussée
sejour 4,8m x 3,8m = 18,3m²
Cuisine 4,7m x 3,1m = 14,6m²
Réserve 3,1m x 4,4m = 13,4m²
Hall d\'entrée Superficie: 1,2m²
Débarras 2,7m x 3,1m = 8,4m²
Premier étage
Salle de bains 4,2m x 2,8m = 11,8m²
Chambre à coucher 3,3m x 4,7m = 15,4m²
Chambre à coucher 4,8m x 5,2m = 25,1m²
Deuxième étage
Grenier 5,2m x 7,8m = 40,5m²
- Chambre(s) 2
- Salle(s) de bains 1
- WC(s) 2
- Grenier Oui
- Chauffage Néant
- Cuisine Armoires seulement
- Vitrage Double
- Avec bureau Non
- Ascenseur Non
- Surface habitable 149 m²
- Code unique 20210827015024
- Energie spécifique (kWh/m²/an) 467
- Energie totale (kWh/an) 82251
- Emission CO2 (kg CO2/m²/an) 112
- Type de chauffage Néant
A
B
C
D
E
F F
G
