Option
OPTION! Maison 3 façades construite en 2022 à Frasnes-lez-gosselies
Rue des Frênes - 6210 FRASNES-LEZ-GOSSELIES
Voir sur carte
OPTION! FRASNES-LEZ-GOSSELIES: A 20min de Nivelles, véritable opportunité pour les familles en quête de confort et de qualité de vie. Maison 3 façades, construite en 2022, composée au rez d\'un hall d\'entrée avec vestiaires, wc séparé, spacieux et lumineux séjour de +/- 45m² avec accès sur la terrasse et le jardin exposé Sud-Ouest, cuisine hyper-équipée ouverte, buanderie. Au 1er étage, espace bureau/palier, 3 chambres dont une avec espace dressing, salle de bain avec baignoire, wc séparé. 2ème étage, grenier aménageable en une pièce supplémentaire en partie et espace de rangement/technique (l\'accès au grenier se fait actuellement par une trappe mais emplacement prévu sur le palier du 1er étage pour placer un escalier). Commodités: Châssis DV en PVC, CC (Chaudière à condensation), VMC Double Flux, 8 Panneaux photovoltaïques, alarme, citerne d\'eau de pluie de 7.500 litres + groupe. Parking facile devant la maison. Différents espaces communs à disposition (piste de pétanque, potager, ...). PEB B - 87 Kwh/m²/an - CU: 20220807501116. Prix: 420.000 € (sous réserve d\'acceptation des propriétaires).
Caractéristiques
Maison 3 façades construite en 2022
Châssis DV en PVC
Chauffage central au gaz (Chaudière à condensation)
Ventilation Double Flux
8 Panneaux photovoltaïques
Système d\'alarme
Citerne d\'eau de pluie de 7.500 litres + groupe
Raccordement à l\'égout
Façade en crépis sur isolant (EPS 20cm)
Dalle de sol --> PUR 10 cm
Toiture --> 20 cm laine de verre
Parking facile devant la maison
Différents espaces communs à disposition (piste de pétanque, potager, ...)
Composition
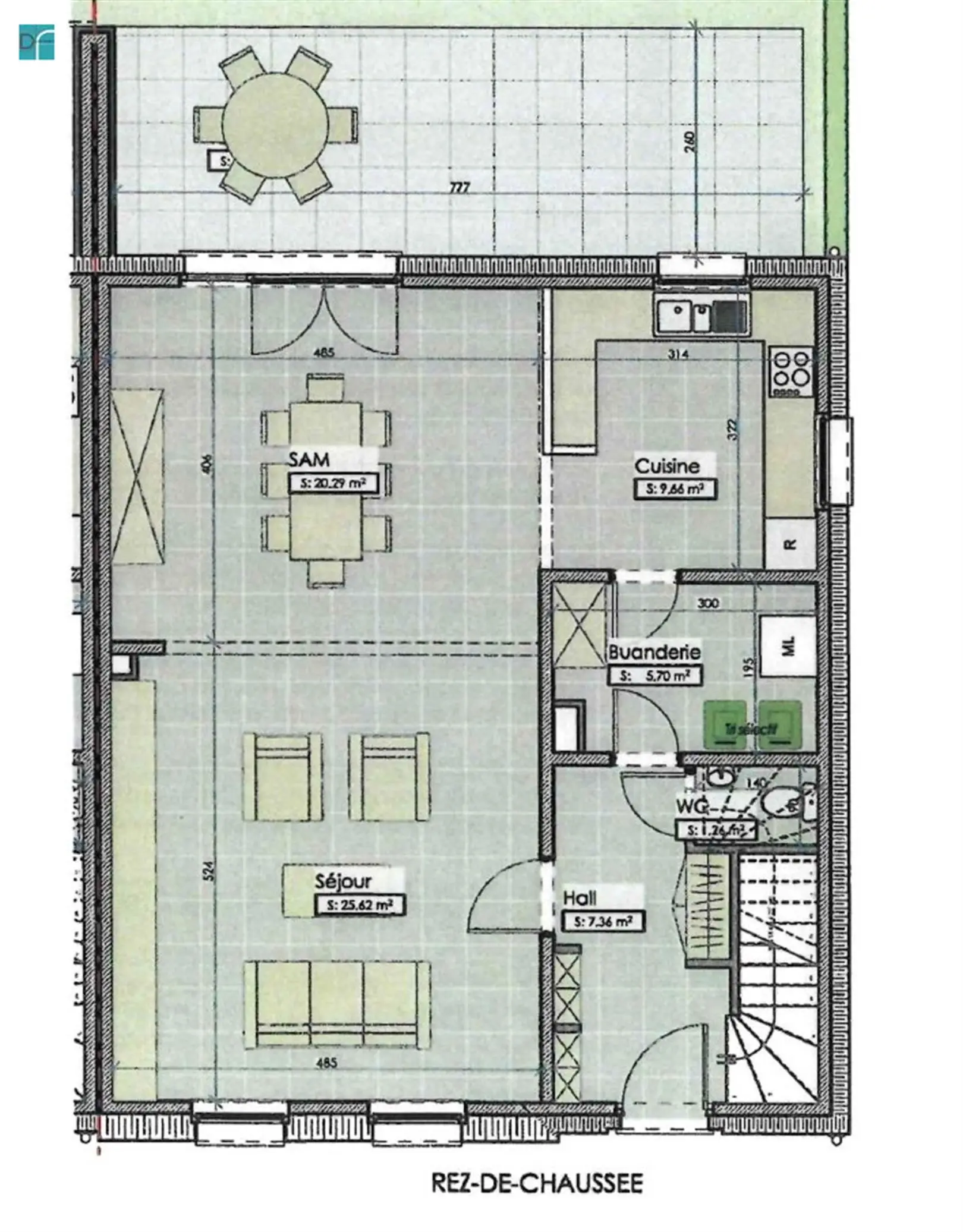
Rez-de-chaussée
Hall d\'entrée Superficie: 7,4m²
WC séparé Superficie: 1,3m²
Living Superficie: 46,0m²
Cuisine super-équipée Superficie: 9,7m²
Buanderie Superficie: 5,7m²
Terrasse Superficie: 19,0m²
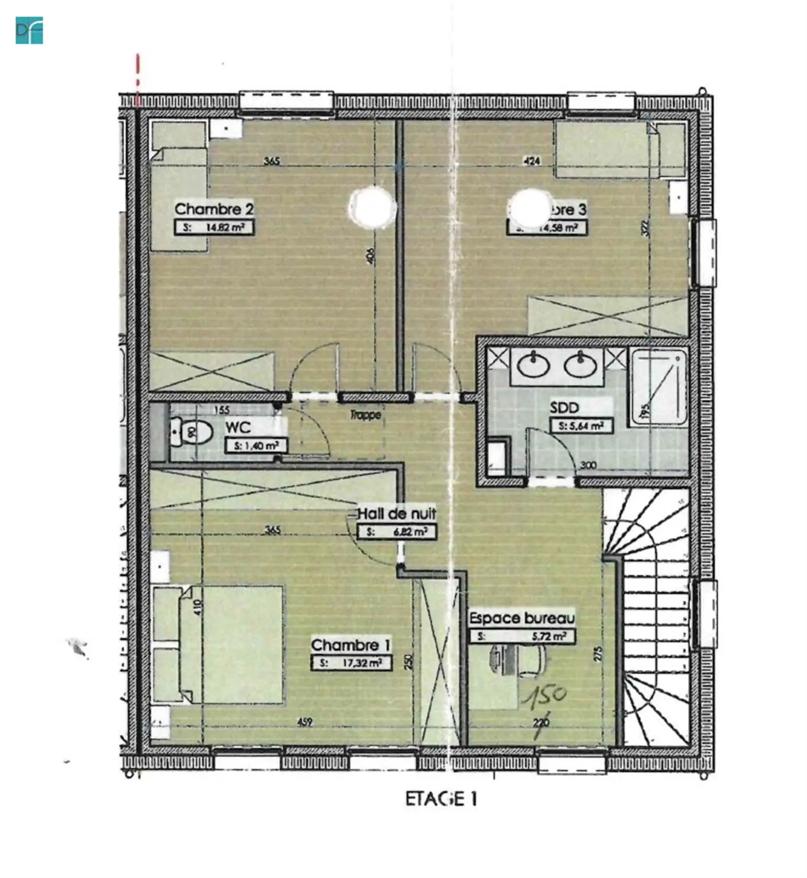
Premier étage
Espace bureau Superficie: 5,7m²
Chambre à coucher Superficie: 17,0m²
Chambre à coucher Superficie: 14,8m²
Chambre à coucher Superficie: 14,6m²
Salle de bains Superficie: 5,6m²
WC séparé Superficie: 1,4m²
Deuxième étage
Grenier aménageable Superficie: 25,0m²
Espace Rangement
- Chambre(s) 3
- Salle(s) de bains 1
- WC(s) 2
- Grenier Oui
- Chauffage C.C. au gaz
- Cuisine hyper-équipée
- Vitrage Double
- Avec bureau Oui
- Ascenseur Non
- Surface habitable 154 m²
- Surface du living 46 m²
- Surface du bureau 6 m²
- Code unique 20220807501116
- Energie spécifique (kWh/m²/an) 87
- Energie totale (kWh/an) 18931
- Type de chauffage C.C. au gaz
A
B B
C
D
E
F
G
