GILLY- Impasse Faflotte 9 : Nous vous présentons cette agréable maison deux façades avec garage de +/- 77m2. Située dans une impasse celle-ci se trouve dans un quartier agréable proche des commodités. Cette charmante maison se compose comme suit , au RDC : un salon (avec poêle au mazout), salle à manger, cuisine et salle de bain. Au première étage nous retrouvons deux chambres communicantes.Prévoir un budget de rénovation, l\'installation électrique devant être complètement rénovée. Jardin avec remises. Dans le jardin se trouve également un passage latérale qui mène à l\'avant de la maison, se passage se fait via la cour de la maison voisine. PEB G - 658 kWh/m².an - CU : 20240404029854. Prix: Faire offre à partir de 110.000 € (sous réserve de l\'acceptation des propriétaires).
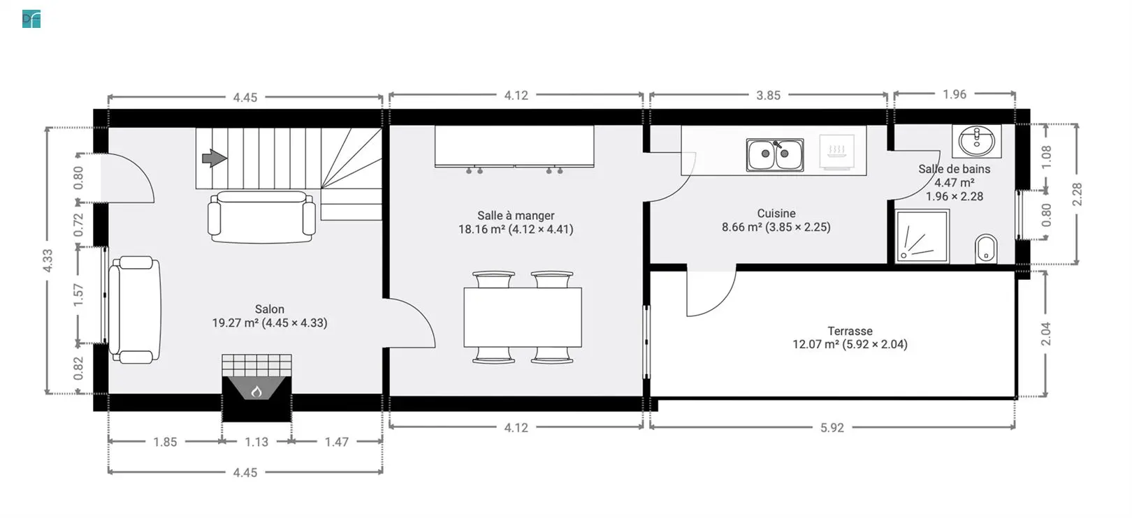
Rez-de-chaussée
Living 4,5m x 4,3m = 19,3m²
Salle à manger 4,1m x 4,4m = 18,2m²
Cuisine 3,9m x 2,3m = 8,7m²
Salle de bains 2,0m x 2,3m = 4,5m²
Étage 1
Chambre à coucher 4,5m x 4,1m = 18,1m²
Chambre à coucher 2,7m x 4,6m = 12,3m²
- Chambre(s) 2
- Salle(s) de bains 1
- WC(s) 1
- Grenier Oui
- Chauffage Poêle à mazout
- Cuisine Armoires seulement
- Vitrage Double
- Avec bureau Non
- Ascenseur Non
- Surface habitable 77 m²
- Surface du living 19 m²
- Surface brut 77 m²
- Surface de la terrasse 20 m²
- Surface du jardin 90 m²
- Surface du terrain 230 m²
