Option
Maison entièrement rénovée 2 chambre à Heppignies
Rue du Bas - 6220 HEPPIGNIES
Voir sur carte
HEPPIGNIES - Rue du Bas 33 : Située dans un environnement agréable, cette maison rénovée vous séduira par ses volumes généreux et sa polyvalence, notamment grâce à son espace dédié à une profession libérale.
Le rez-de-chaussée se compose d’un hall d’entrée, d’un lumineux séjour avec salon et salle à manger, d’une cuisine prolongée par une partie professionnelle indépendante complète ce niveau, idéale pour une activité à domicile.
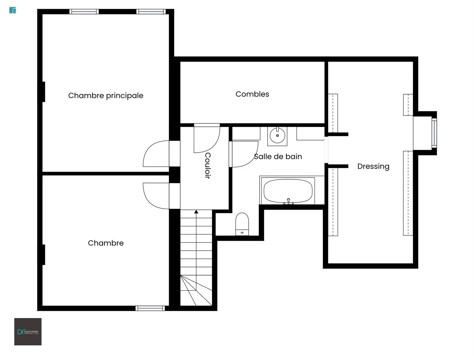
À l’étage, vous découvrirez 2 chambres confortables, et un espace dressing, ainsi qu’une salle de bains. Des caves offrent également un espace de stockage appréciable.
D’un point de vue technique : panneaux solaires, châssis PVC double vitrage et chauffage central au gaz assurent confort et efficacité énergétique. .
Une opportunité idéale pour allier vie privée et activité professionnelle. À visiter sans tarder ! Information et visite au 071/810/888
CARACTERISTIQUES:
- Panneaux solaires
- rénové
- espace profession libérale
- châssis dv pvc
- chauffage central gaz
- PEB D
Cave
Cave 2,6m x 3,2m = 8,2m²
Cave 3,9m x 3,0m = 11,6m²
Rez-de-chaussée
Hall d\'entrée 2,4m x 1,4m = 3,4m²
Salle à manger 5,1m x 4,0m = 20,4m²
salon 4,0m x 4,0m = 15,9m²
Cellier 1,2m x 6,6m = 8,1m²
Véranda 2,8m x 6,1m = 17,1m²
Partie professionnelle 2,9m x 6,2m = 18,1m²
Premier étage
Chambre à coucher 4,1m x 4,0m = 16,5m²
Chambre à coucher 4,1m x 5,1m = 20,9m²
Salle de bains 2,8m x 2,8m = 7,8m²
Chambre à coucher 2,8m x 5,0m = 13,9m² ( dressing )
Grenier de rangement 1,0m x 4,3m = 4,2m²
- Chambre(s) 3
- Salle(s) de bains 1
- Grenier Oui
- Chauffage C.C. au gaz
- Cuisine Armoires et appareils
- Vitrage Double
- Avec bureau Non
- Ascenseur Non
