Vendu
Maison avec jardin et piscine à Mellet
Rue Léon Mercier - 6211 MELLET
Voir sur carteRevenu cadastral : 1.249 €
MELLET - Rue Léon Mercier 24 : Maison 4 façades avec 4 chambres située dans une rue calme avec 2 garages et piscine (liner à changer) sur un terrain de 18a50ca. L\'habitation se compose comme suit : Au rez-de-chaussée, hall d\'entrée, séjour de +/- 33m2 avec poêle à pellets et airco, cuisine équipée et buanderie donnant sur le jardin, salle de douche avec wc, 2 chambres et wc séparé. Au premier étage, 2 chambres de 23m2 dont une avec dressing de 24m2 et une salle de bain avec wc. De nombreuses caves sont présentes. Commodités : Châssis double vitrage pvc, chauffage au mazout et poêle à pellets, système d\'alarme Verisure, raccord à l\'égout, volets. Electricité non-conforme. PEB E - 401kWh/m2/an - CU : 20250429000653. Prix: Faire offre à partir de 380.000 € (sous réserve de l\'accord des propriétaires). Mesures prises intramuros.
CARACTERISTIQUES :
- Châssis double vitrage pvc
- Chauffage au mazout et poêle à pellets
- Système d\'alarme Verisure
- Raccord à l\'égout
- Volets
- Piscine
- 4 Chambres + dressing
- 2 Salles d\'eau
- 2 Garages
- Nombreuses caves
COMPOSITION :
Cave
Cave
Rez-de-chaussée
sejour 8,2m x 4,0m = 32,7m²
Cuisine 4,3m x 3,9m = 16,8m²
Buanderie 1,7m x 3,2m = 5,4m²
WC ,8m x 1,6m = 1,3m²
Salle de douche 3,0m x 2,6m = 7,8m²
Chambre à coucher 3,4m x 3,9m = 13,2m²
Chambre à coucher 2,9m x 4,1m = 11,9m²
Hall d\'entrée 2,3m x 3,5m = 8,1m²
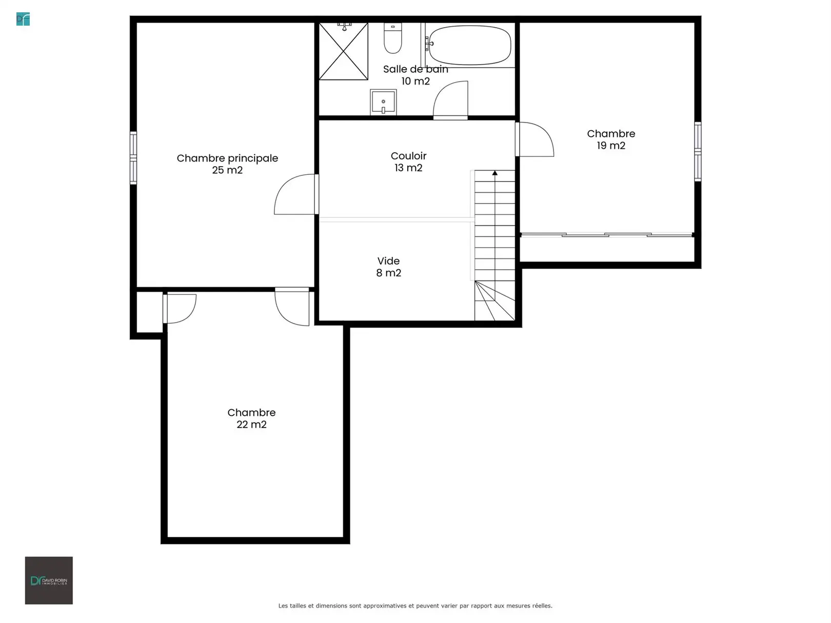
Premier étage
Chambre à coucher 5,9m x 3,9m = 23,0m²
Chambre à coucher 4,0m x 5,9m = 23,6m²
Dressing 5,5m x 4,4m = 24,2m²
Salle de bains 2,1m x 4,4m = 9,2m²
- Chambre(s) 4
- Salle(s) de bains 2
- WC(s) 3
- Grenier Non
- Chauffage C.C. au mazout
- Cuisine Armoires et appareils
- Vitrage Double
- Avec bureau Non
- Ascenseur Non
- Surface habitable 178 m²
- Surface du living 33 m²
- Code unique 20250429000653
- Energie spécifique (kWh/m²/an) 401
- Energie totale (kWh/an) 100581
- Type de chauffage C.C. au mazout
A
B
C
D
E E
F
G
