Faire offre à partir de
Maison plain-pied dans le beau village de Landelies avec 3 chambres à Montigny-le-tilleul
Rue de Leernes - 6110 MONTIGNY-LE-TILLEUL
Voir sur carteRevenu cadastral : 907 €
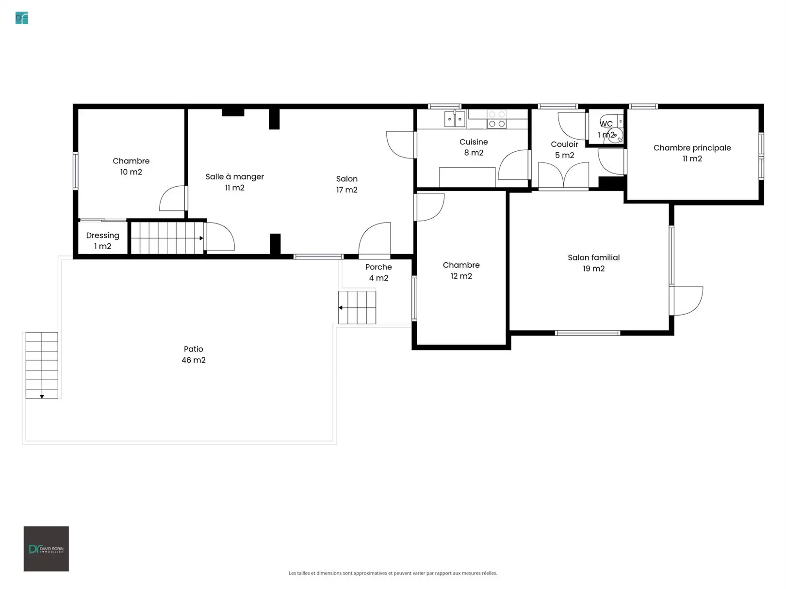
Montigny-le-Tilleul - Rue de Leernes 75 : Maison plain-pied se situant dans le beau village de Landelies avec 3 chambres, terrasse et jardin. L\'habitation se compose comme suit : Au rez-de-chaussée, premier salon de 21 m2, hall, WC, chambre, cuisine, séjour de +/- 30m2 donnant sur la terrasse de 42m2, 2 autres chambres dont une avec dressing. Au -1 : Salle de bain avec WC et hall de vie. Garage 2 places. Commodités : Châssis double vitrage pvc de 2015, Chauffage au Gaz avec chaudière de 2012, Compteur bi-horaire, Portail électrique récent. Electricité non-conforme. PEB D - 272kWh/m2/an - CU : 20240620003373. Prix: Faire offre à partir de 250.000 € (sous réserve de l\'accord des propriétaires). Mesures prises intramuros.
Caractéristiques :
- Châssis double vitrage pvc de 2015
- Chauffage au Gaz
- Chaudière de 2012
- Compteur bi-horaire
- 3 Chambres
- Garage 2 places
- Grand parking
- Barrière électrique
Descriptif :
Cave
Garage 5,1m x 7,8m = 39,8m²
Salle de bains 1,9m x 4,0m = 7,6m²
Hall de vie 5,7m x 2,4m = 13,7m²
Rez-de-chaussée
salon 4,3m x 4,8m = 20,6m²
Hall de vie 2,0m x 2,2m = 4,4m²
WC 1,0m x 1,0m = 1,0m²
Chambre à coucher 4,0m x 2,8m = 11,2m²
Cuisine 3,2m x 2,2m = 7,0m²
Chambre à coucher 2,7m x 4,7m = 12,7m²
sejour 6,7m x 4,4m = 29,5m²
Chambre à coucher 3,0m x 3,3m = 9,9m²
Terrasse Superficie: 42,0m²
- Chambre(s) 3
- Salle(s) de bains 1
- WC(s) 2
- Grenier Oui
- Chauffage C.C. au gaz
- Cuisine Armoires et appareils
- Vitrage Double
- Avec bureau Non
- Ascenseur Non
- Surface habitable 120 m²
- Code unique 20240620003373
- Energie spécifique (kWh/m²/an) 272
- Energie totale (kWh/an) 42681
- Type de chauffage C.C. au gaz
A
B
C
D D
E
F
G
