Vendu
VENDU! Spacieuse villa située dans un cadre paisible à Nalinnes
Chemin Napoléon - 6120 NALINNES
Voir sur carteRevenu cadastral : 1.755 €
VENDU! NALINNES - Chemin Napoléon 22: Dans un cadre privilégié, spacieuse villa 4 façades pouvant convenir pour une grande ou 2 familles ou une profession libérale (2 entrées distinctes). Cette maison sur un terrain de +/- 10a vous séduira par ses volumes et sa situation. Elle se compose au rez : d\'un hall d\'entrée avec vestiaires, 2 wc séparés, salon et salle à manger sur +/- 65m² donnant sur la terrasse et le jardin, cuisine équipée avec accès sur la terrasse arrière et la pergola, bureau ou pièce professionnelle, 2 garages 1 voiture, buanderie. A l\'étage: 5 chambres, 2 salles de bains et une salle de douche + wc. Commodités: Construction de 1978 - ajout en 1995 (permis d\'urbanisme en ordre), châssis DV en PVC, CC mazout (chaudière Viessmann de 2010), adoucisseur d\'eau, installation électrique refaite en 1995 (mais mise en conformité à prévoir), citerne d\'eau de pluie de 2m³, toiture en tuiles en TB état, 2 terrasses dont une couverte, situation idéale. Vidéo disponible: https://youtu.be/XGvsmU7WmvE. PEB C - 231 kwh/m²/an - CU: 20230920021729. Prix: Faire offre à partir de 395.000 € (sous réserve d\'acceptation du propriétaire).
Caractéristiques
Spacieuse villa pouvant convenir pour grande famille ou 2 familles
Partie professionnelle
Construction de 1978 - ajout en 1995
Châssis DV en PVC
Chauffage central mazout (chaudière Viessmann de 2010)
Cuve inférieure à 3.000 litres
Adoucisseur d\'eau
Installation électrique refaite en 1995 (mise en conformité à prévoir)
Citerne d\'eau de pluie de 2m³
Toiture en tuiles
2 terrasses dont une couverte
Raccordement à l\'égout
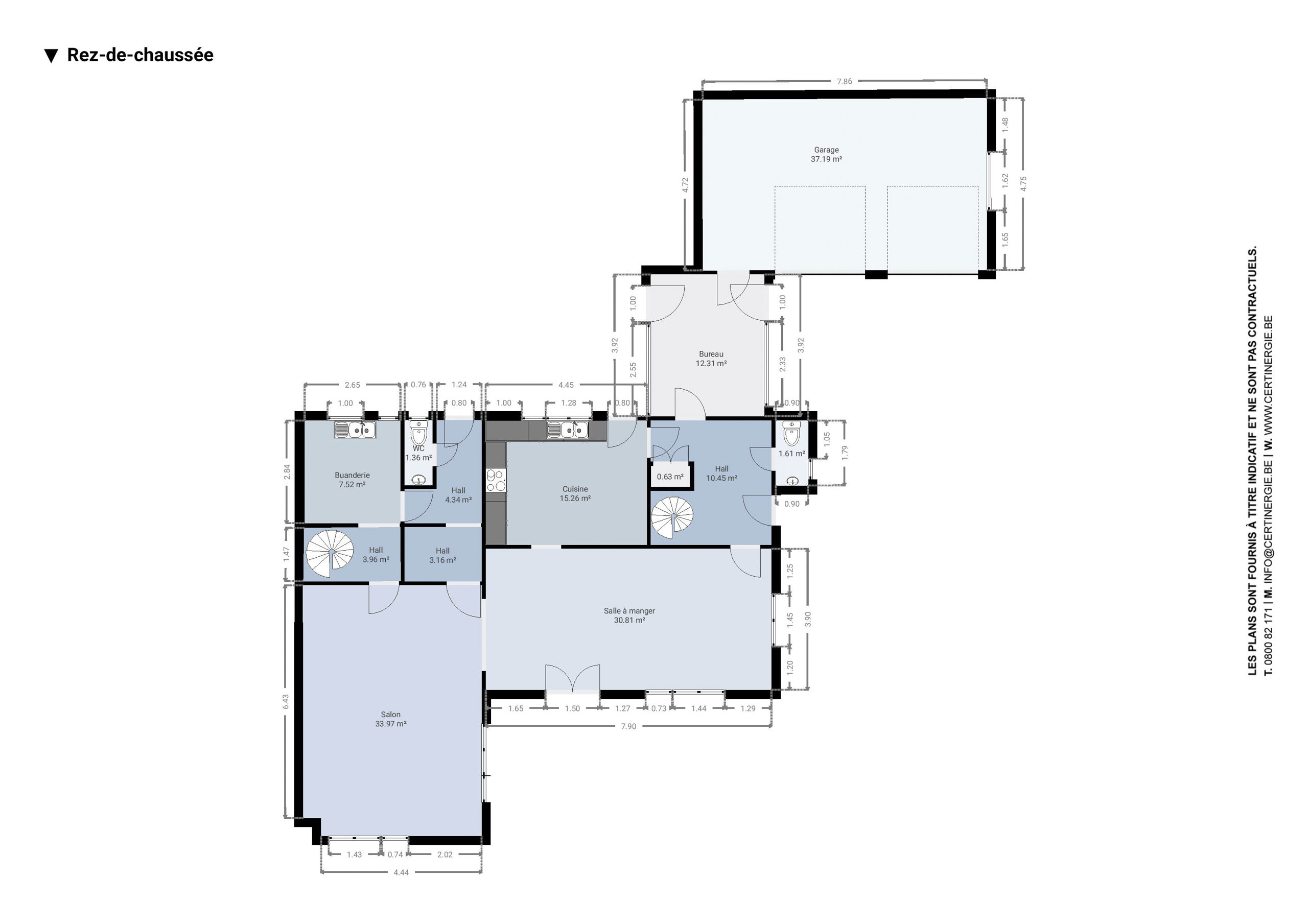
Rez-de-chaussée
Hall d\'entrée + vestiaires Superficie: 10,5m²
WC séparé Superficie: 1,6m²
Salle à manger Superficie: 31,0m²
Salon Superficie: 34,0m²
Cuisine super-équipée Superficie: 15,3m²
Bureau Superficie: 12,3m²
Buanderie Superficie: 7,5m²
Garage 2 voitures Superficie: 37,0m²
Dégagement Superficie: 7,0m²
Étage 1
Hall de nuit Superficie: 10,0m²
Salle de bains Superficie: 8,0m²
Salle de bains Superficie: 4,0m²
Salle de douche + wc Superficie: 7,0m²
Chambre à coucher Superficie: 20,0m²
Chambre à coucher Superficie: 17,0m²
Chambre à coucher Superficie: 17,0m²
Chambre à coucher Superficie: 14,0m²
Chambre à coucher Superficie: 12,5m²
- Chambre(s) 5
- Salle(s) de bains 3
- WC(s) 2
- Grenier Non
- Chauffage C.C. au mazout
- Cuisine Entièrement équipée
- Vitrage Double
- Avec bureau Oui
- Ascenseur Non
- Surface habitable 230 m²
- Surface du living 65 m²
- Surface du bureau 12 m²
- Code unique 20230920021729
- Energie spécifique (kWh/m²/an) 231
- Energie totale (kWh/an) 58083
- Type de chauffage C.C. au mazout
A
B
C C
D
E
F
G
