Vendu
Jolie Fermette à WagnelÉe
Chemin de Beurre - 6223 WAGNELÉE
Voir sur carteRevenu cadastral : 282 €
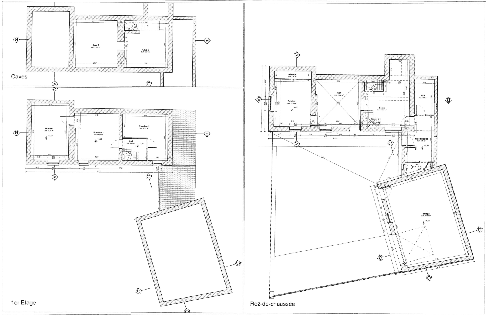
Jolie fermette à rénover située à Wagnelée, dans un charmant village de campagne, à 17 km de Nivelles et 25 km de Namur. Elle se compose comme suit : Sous-sol : 2 caves (une voûtée, une avec vousettes) - Rez-de-chaussée :Hall d\'entrée avec coin vestiaire fermé WC indépendant, Salle de bain carrelée, Cuisine semi-équipée, Salle à manger,Salon. - Étage : 3 chambres Extérieurs : jardin, garage et hangar. ·Superficie terrain : 420 m² - Autres caractéristiques : Chauffage central au mazout (chaudière Saint Roch) - Châssis bois double vitrage avec croisillons - Compteur bi-horaire - Toiture en tuiles (état à vérifier) Électricité partiellement rénovée (non conforme) Carrelage au rez-de-chaussée, plancher à l\'étage - RC : 282 (maison) PEB : G - A proximité des commerces, écoles et transports en commun. Faire offre à partir de 170.000€ sous réserve d\'acceptation du propriétaire. Pour plus d\'informations ou organiser une visite, contactez-nous au 071/810.888
- Maison reliée aux égouts
- Elec non conforme
Rez-de-chaussée
Cuisine 4,1m x 3,0m = 12,3m²
Salle à manger 3,9m x 3,8m = 14,8m²
salon 3,9m x 3,7m = 15,4m²
Salle de bains 2,9m x 1,6m = 4,7m²
WC ,8m x 2,2m = 1,9m²
Étage 1
Chambre à coucher 2,0m x 5,0m = 11,0m²
Chambre à coucher 3,6m x 4,0m = 14,4m²
Chambre à coucher 3,1m x 4,8m = 15,1m²
- Chambre(s) 3
- Salle(s) de bains 1
- Salle(s) de douche 1
- WC(s) 1
- Grenier Non
- Chauffage C.C. au mazout
- Cuisine Armoires et appareils
- Vitrage Double
- Avec bureau Non
- Ascenseur Non
- Surface habitable 89 m²
- Surface du living 15 m²
- Energie spécifique (kWh/m²/an) 606
- Energie totale (kWh/an) 82763
- Type de chauffage C.C. au mazout
A
B
C
D
E
F
G G


