Vendu
Spacieuse maison de 4 chambres rénovée avec gout ! à WanfercÉe-baulet
Rue Trieu Gossiaux - 6224 WANFERCÉE-BAULET
Voir sur carteRevenu cadastral : 1.058 €
WANFERCEE-BAULET : Rue Trieu Gossiaux 56 - Superbe maison 3 façades rénovée avec beaucoup de charme offrant 4 généreuse chambres. Le bien se compose comme suit : au rez: hall d\'entrée, wc séparé, bureau, agréable living de +/- 50m², cuisine hyper-équipée (frigo, LV, four, hotte et taques vitro), accès sur la terrasse offrant une vue agréable sur le jardin. A Etage: hall de nuit distribuant 2 chambres, un dressing et une salle de bain. Grenier aménagé avec deux chambres supplémentaires et un espace salle de jeux. La maison dispose aussi d\'une cave à provision un garage et une buanderie. Commodités: Châssis DV en PVC récents, chauffage central gaz, toiture en ardoises naturelles en parfait état, volet électrique pour le garage. Proximité immédiate des commerces. PEB D - 90 958 kwh/m²/an - CU: 20140920007348 Prix: FAIRE OFFRE àpd 279.000 € (sous réserve d\'acceptation des propriétaires). LES PLANS SONT FOURNIS A TITRE INDICATIF ET NON CONTRACTUEL. DAVID ROBIN IMMOBILIER N\'ACCORDE AUCUNE GARANTIE, Y COMPRIS, SANS S\'Y LIMITER, DES GARANTIES QUANT A LA QUALITE ET A LA PRECISION DES DIMENSIONS
Caractéristiques :
Maison 3 façades
Garage
Chauffage central gaz
Châssis DV en PVC
Toiture en ardoises artificielles en TB état
Système d\'alarme
1 poêle au bois
Portes sectionnelles télécommandées
Raccordement à l\'égout
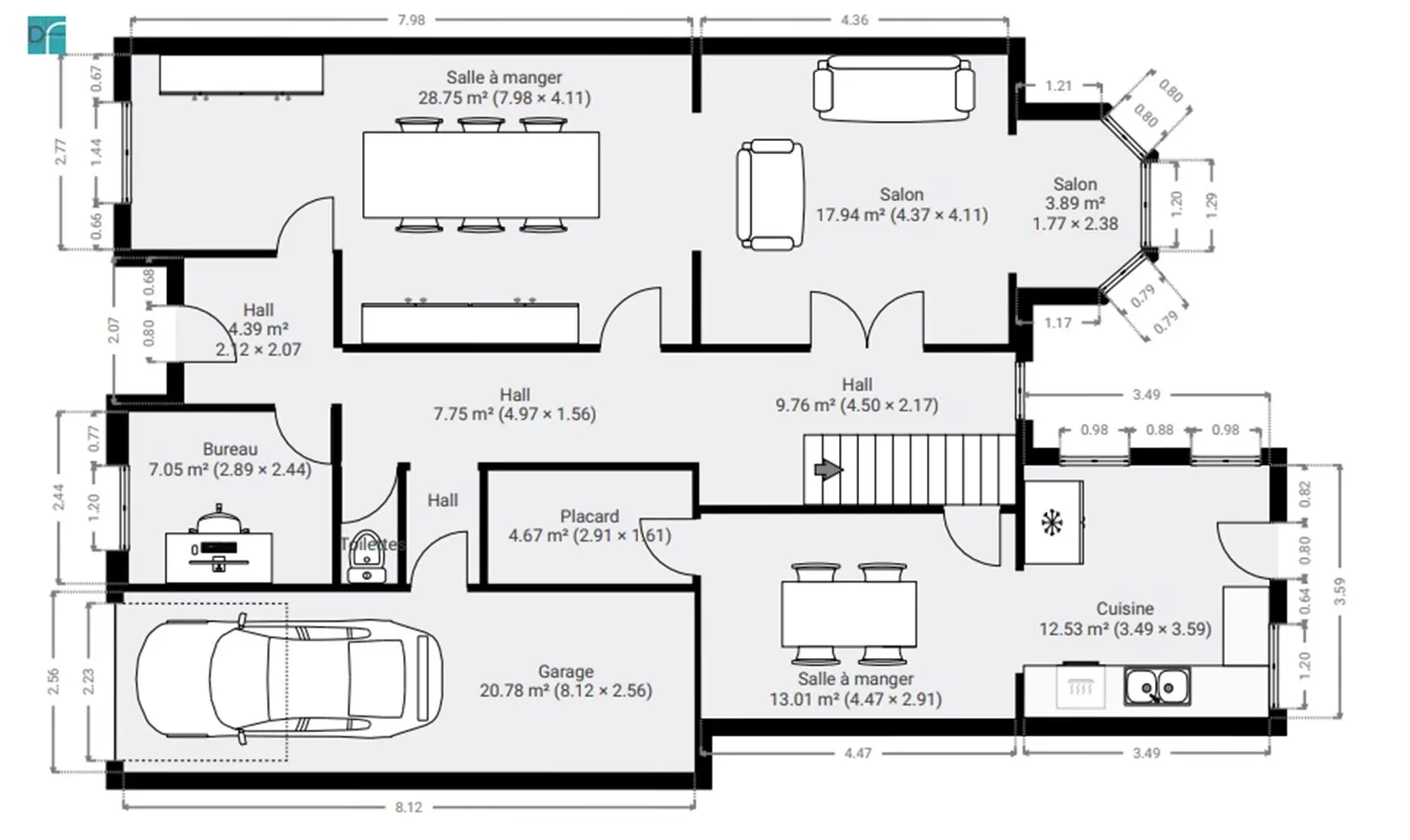
Rez-de-chaussée
Hall d\'entrée 2,1m x 2,0m = 4,2m²
Bureau 2,9m x 2,4m = 7,1m²
Hall d\'entrée 5,0m x 1,6m = 7,8m²
WC 1,6m x ,8m = 1,3m²
Garage 8,1m x 2,6m = 20,8m²
Salle à manger 8,0m x 4,1m = 32,9m²
salon 4,4m x 4,1m = 18,0m²
salon 1,8m x 2,4m = 4,2m²
Hall d\'entrée 4,5m x 2,2m = 9,8m²
Salle à manger 4,5m x 2,9m = 13,0m²
Réserve 2,9m x 1,6m = 4,7m²
Cuisine super-équipée 3,6m x 3,5m = 12,5m²
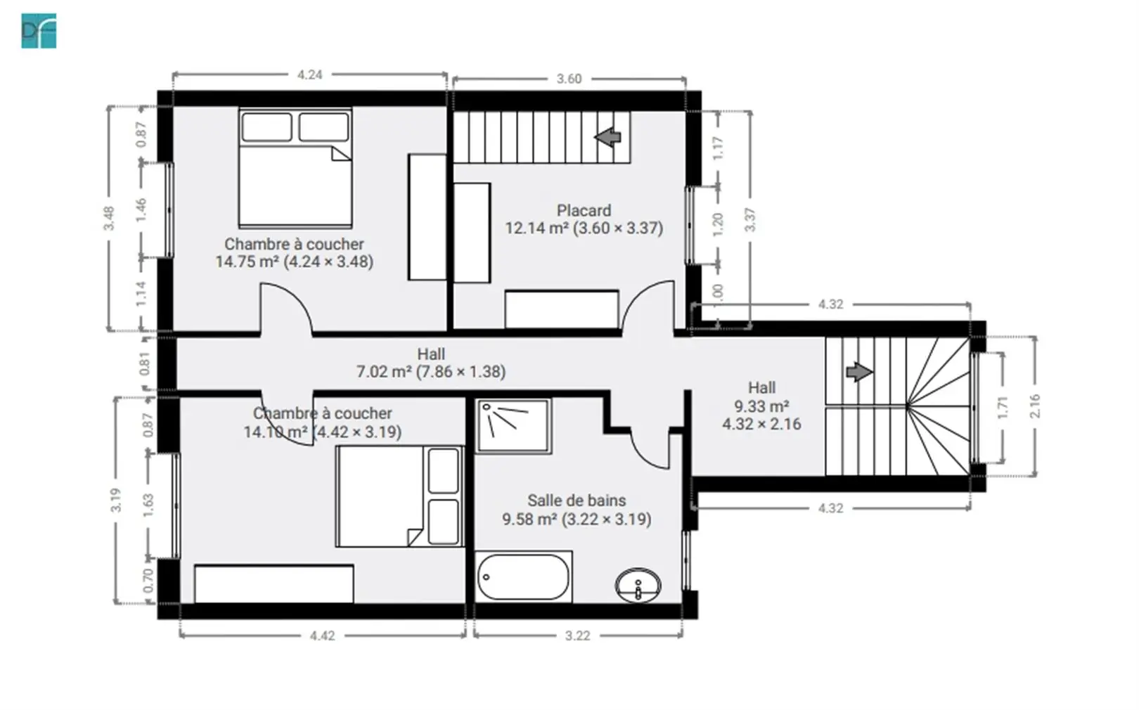
Étage 1
Hall de nuit 4,3m x 2,2m = 9,3m²
Hall de nuit 7,9m x 1,0m = 7,9m²
Salle de bains 3,2m x 3,2m = 10,3m²
Dressing 3,6m x 3,4m = 12,1m²
Chambre à coucher 4,2m x 3,5m = 14,8m²
Chambre à coucher 4,4m x 3,2m = 14,1m²
Étage 2
Chambre à coucher 4,0m x 3,5m = 13,8m²
Chambre à coucher 4,0m x 3,6m = 14,2m²
Salle de jeux 8,2m x 3,0m = 24,5m²
- Chambre(s) 4
- Salle(s) de bains 1
- WC(s) 2
- Grenier Non
- Chauffage C.C. au gaz
- Cuisine Armoires et appareils
- Vitrage Double
- Avec bureau Non
- Ascenseur Non
- Surface habitable 236 m²
- Surface du living 50 m²
- Code unique 20140920007348
- Energie spécifique (kWh/m²/an) 340
- Energie totale (kWh/an) 90958
- Emission CO2 (kg CO2/m²/an) 65
- Type de chauffage C.C. au gaz
A
B
C
D D
E
F
G
