Maison unifamiliale 4 chambres + grand jardin et garage à WanfercÉe-baulet
Rue du Cortil - 6224 WANFERCÉE-BAULET
Voir sur carte
WANFERCÉE-BAULET - Rue du Cortil 55 : Idéalement située dans un cadre agréable et proche des facilités, cette charmante maison unifamiliale de 200m² sur un terrain de 25 ares vous offre de très spacieux espaces de vie. Elle se compose d\'un hall d\'entrée, d\'un salon, d\'une salle à manger avec feu ouvert, d\'une cuisine fonctionnelle avec salon familial, et une salle de bain et douche + WC. À l\'étage, vous trouverez un hall de nuit desservant 4 chambres confortables de 14m² dont une avec coin sanitaire, ainsi qu\'une terrasse couverte en hauteur et communicante avec deux des chambres. Le grenier aménageable permet l\'aménagement de deux chambres supplémentaires. Un garage pour une voiture et un second garage pouvant accueillir deux véhicules, ainsi que des caves viennent compléter ce bien. L\'espace extérieur est un véritable atout, avec barbecue fixe et un four à pizza + local de rangement, idéal pour profiter des beaux jours dans ce spacieux jardin. En termes d\'équipements, la maison dispose de châssis PVC double vitrage (2009), du chauffage central au mazout + feu ouvert, de volets électriques. PEB G - 644 Kwh/m²/an - CU 20260218017204. Prix : Faire offre àpd 299.000€ (sous réserve d\'acceptation des propriétaires). Pour ne pas manquer cette opportunité, contactez-nous au 071/810 888!
DESCRIPTIF
- Charmante maison unifamiliale de 200m²
- Grands espaces de vie
- Terrain de 25 ares
- Châssis PVC double vitrage (2009)
- C.C. mazout + feu ouvert
- Grenier aménageable en 2 chambres supplémentaires
- Un garage 1 voiture et un second pouvant accueillir 2 véhicules
- Espace cuisine extérieur avec barbecue fixe et four à pizza
- Volets électriques
COMPOSITION
Caves
Cave à provisions 6,9m x 5,9m = 40,9m²
Rez-de-chaussée
Hall d\'entrée 7,0m x 2,2m = 15,4m²
Salon 4,5m x 4,2m = 18,8m²
Salle à manger 7,0m x 4,2m = 18,1m²
Salon familial 5,0m x 3,7m = 18,1m²
Cuisine équipée 6,1m x 3,3m = 19,8m²
Salle de bains 4,2m x 2,2m = 9,2m²
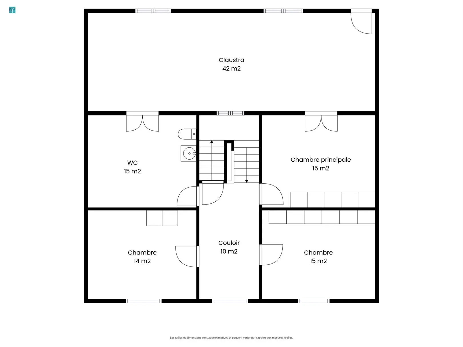
Premier étage
Chambre 1 4,2m x 3,5m = 14,7m²
Chambre 2 4,2m x 3,4m = 14,3m²
Chambre 3 4,2m x 3,5m = 14,5m²
Chambre 4 4,2m x 3,5m = 14,4m²
Terrasse couverte en hauteur 11,0m x 3,7m = 40,6m²
Grenier
Grenier 3,2m x 2,2m = 7,0m²
Grenier 4,2m x 4,0m = 16,8m²
Grenier 4,2m x 4,4m = 18,4m²
- Chambre(s) 4
- Salle(s) de bains 1
- WC(s) 2
- Grenier Oui
- Chauffage C.C. au mazout
- Cuisine Armoires et appareils
- Vitrage Double
- Avec bureau Non
- Ascenseur Non
- Surface habitable 200 m²
- Code unique 20260218017204
- Energie spécifique (kWh/m²/an) 644
- Type de chauffage C.C. au mazout
A
B
C
D
E
F
G G
