Chaussée de Nivelles - 5140 SOMBREFFE
Voir sur carteRevenu cadastral : 832 €
Caractéristiques:
Bâtiment libre d'occupation
Châssis DV en bois
Chauffage Central Mazout
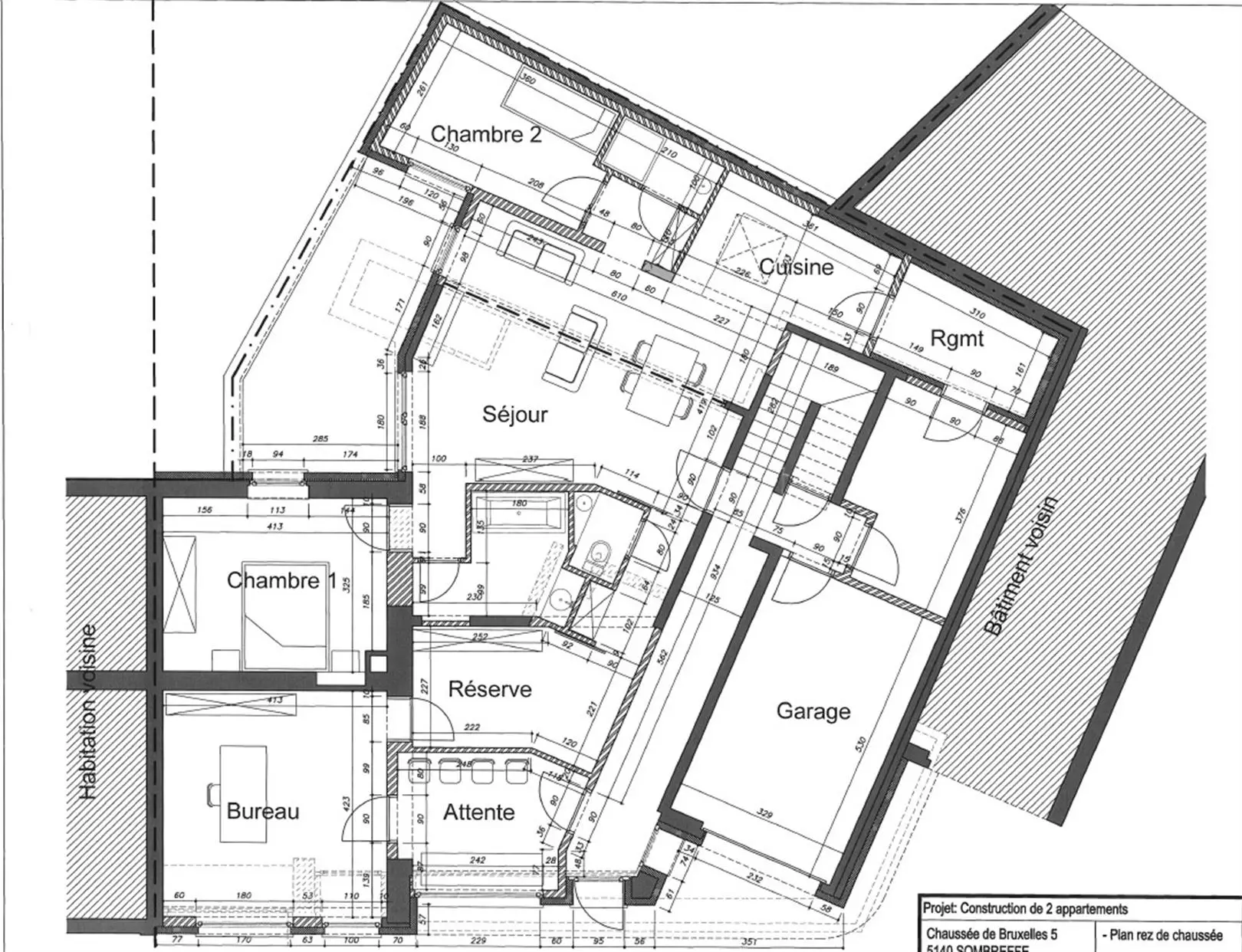
Garage avec porte sectionnelle
Caves
Petit jardin
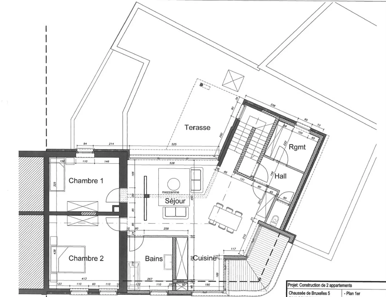
Rez-de-chaussée
Magasin actuel 3,2m x 9,1m = 28,5m² + 7,1 m² = 35,6 m².
Réserve4,0m x 3,2m = 12,6m²
Atelier 4,9m x 5,5m = 27,0m²
Hall d'entrée0,9m x 2,9m = 2,6m²
Garage 2 voitures 9,2m x 3,3m = 30,4m²
1er Étage
Hall de vie4,7m x 2,7m = 12,6m²
Hall de vie5,0m x 2,5m = 12,4m²
Bureau4,3m x 4,1m = 17,4m²
Bureau3,3m x 4,2m = 13,7m²
2ème Étage
Grenier aménageable4,5m x 4,5m = 20,0m²
- WC(s) 1
- Grenier Oui
- Chauffage C.C. au mazout
- Vitrage Double
- Avec bureau Non
- Ascenseur Non
- Surface habitable 185 m²
