Terrain avec permis pour une villa contemporaine à Mettet
Rue de Prée - 5640 METTET
Voir sur carte
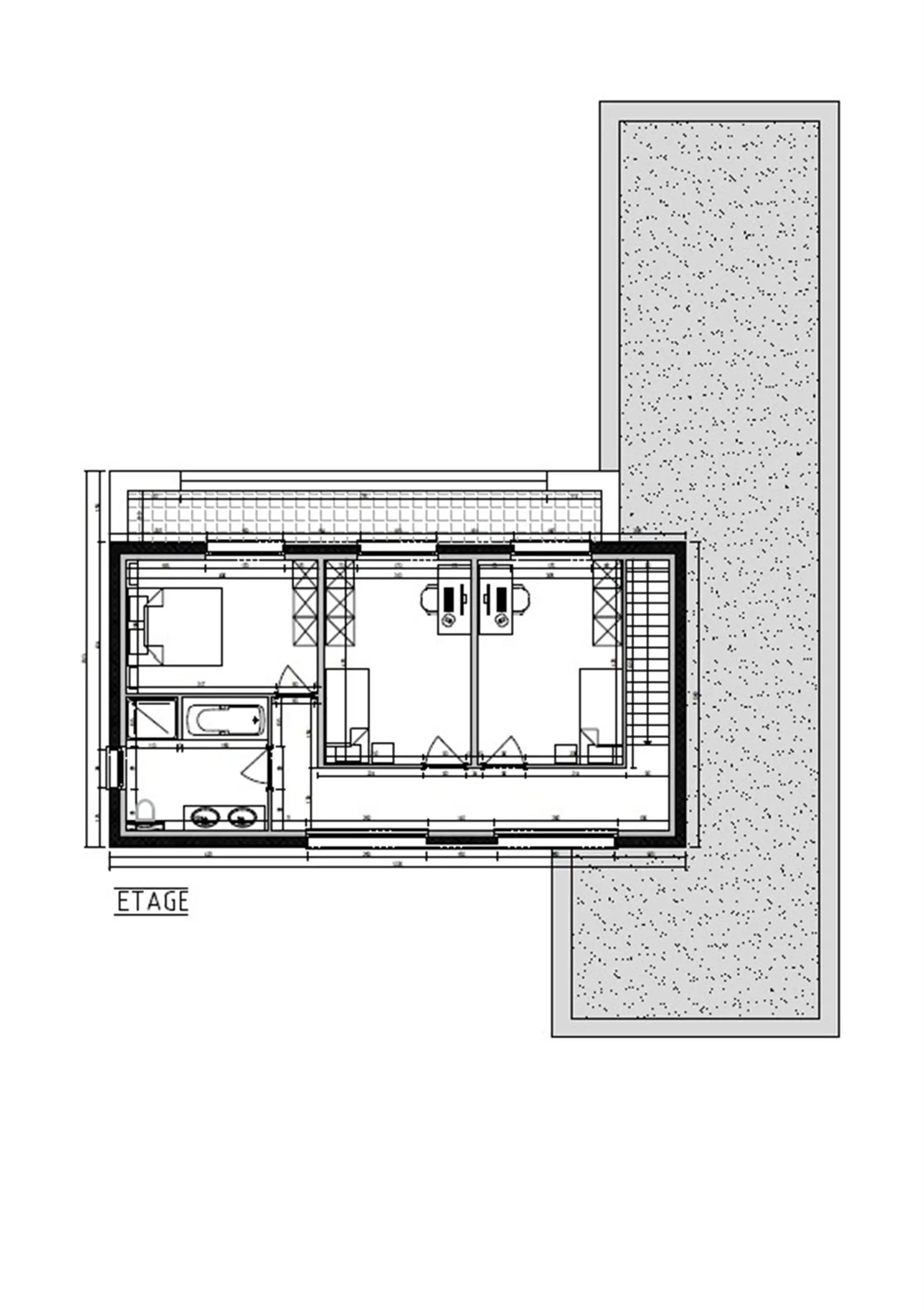
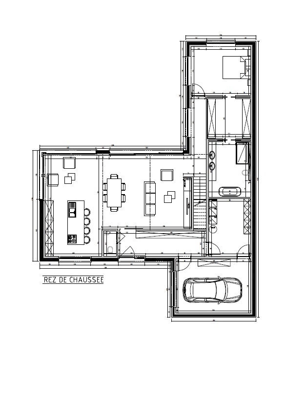
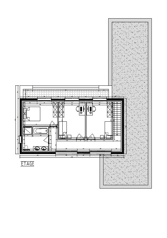
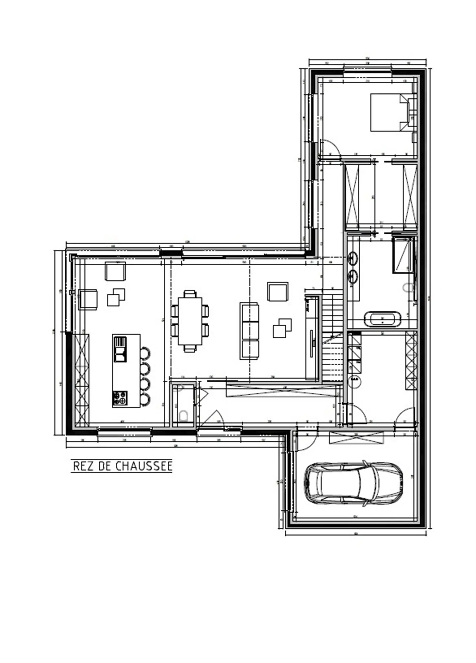
METTET - Rue de Prée (En face du n° 4): Dans un quartier calme et campagnard, belle parcelle de terrain à bâtir de +/- 14a 50ca avec permis d\'urbanisme pour la construction d\'une villa contemporaine 4 chambres et 2 salle de bain. Permis valable jusqu\'au 04/05/2027. Orientation Nord-Ouest arrière. Pas d\'obligation de reprendre le permis octroyé. Plans et permis sur demande. Prix: 135.000 € (sous réserve d\'acceptation des propriétaires).
- Grenier Non
- Avec bureau Non
- Ascenseur Non
