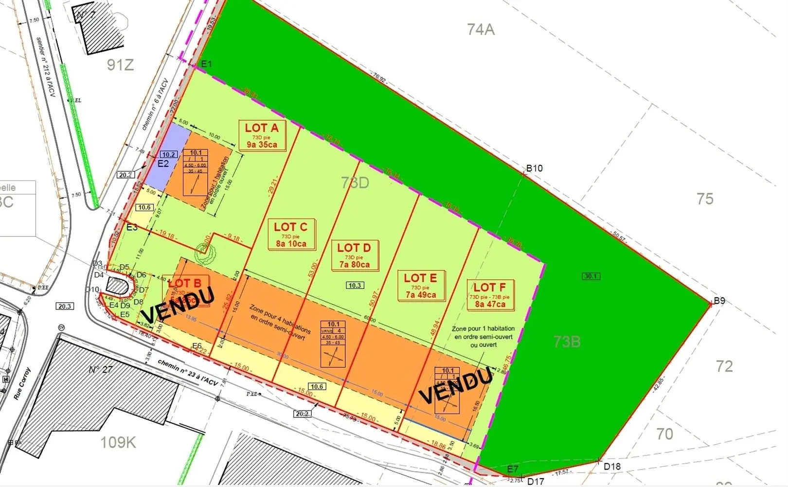
METTET - Rue Corroy (Face au n° 27): Dans un cadre agréable, belle parcelle de terrain à bâtir d\'une superficie de +/- 7a 80ca - 15m de façade et +/- 51m de profondeur. Terrain pour constructions 3 façades par le Volume principal ou secondaire. Prévoir une mini station d épuration car l\'égout sera uniquement pour les eaux claires. Prescriptions urbanistiques sur notre site www.davidrobinimmobilier.be. Prix: 80.500 € (sous réserve d\'acceptation du propriétaire). Quote-part des frais de mesurage et de bornage de +/- 750 € htva à charge de l\'acquéreur.
- Grenier Non
- Avec bureau Non
- Ascenseur Non
