Vendu
VENDU! Terrain avec projet de construction de 6 maisons à Stave
Rue Hubert Penet - 5646 STAVE
Voir sur carte
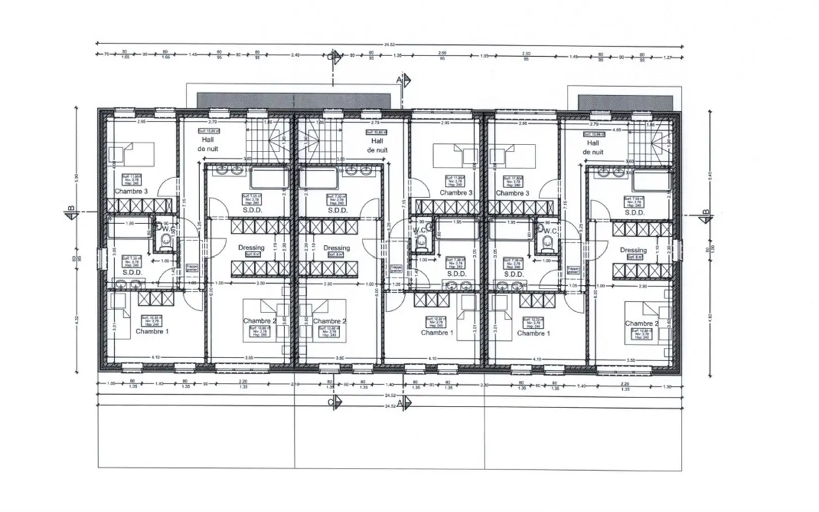
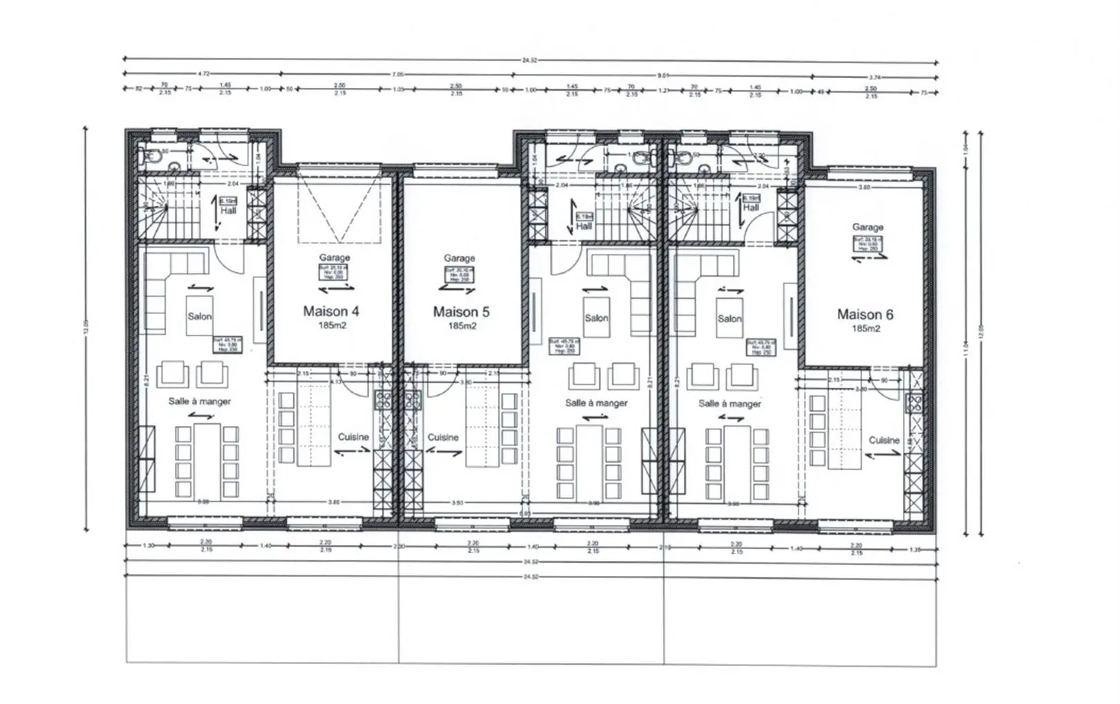
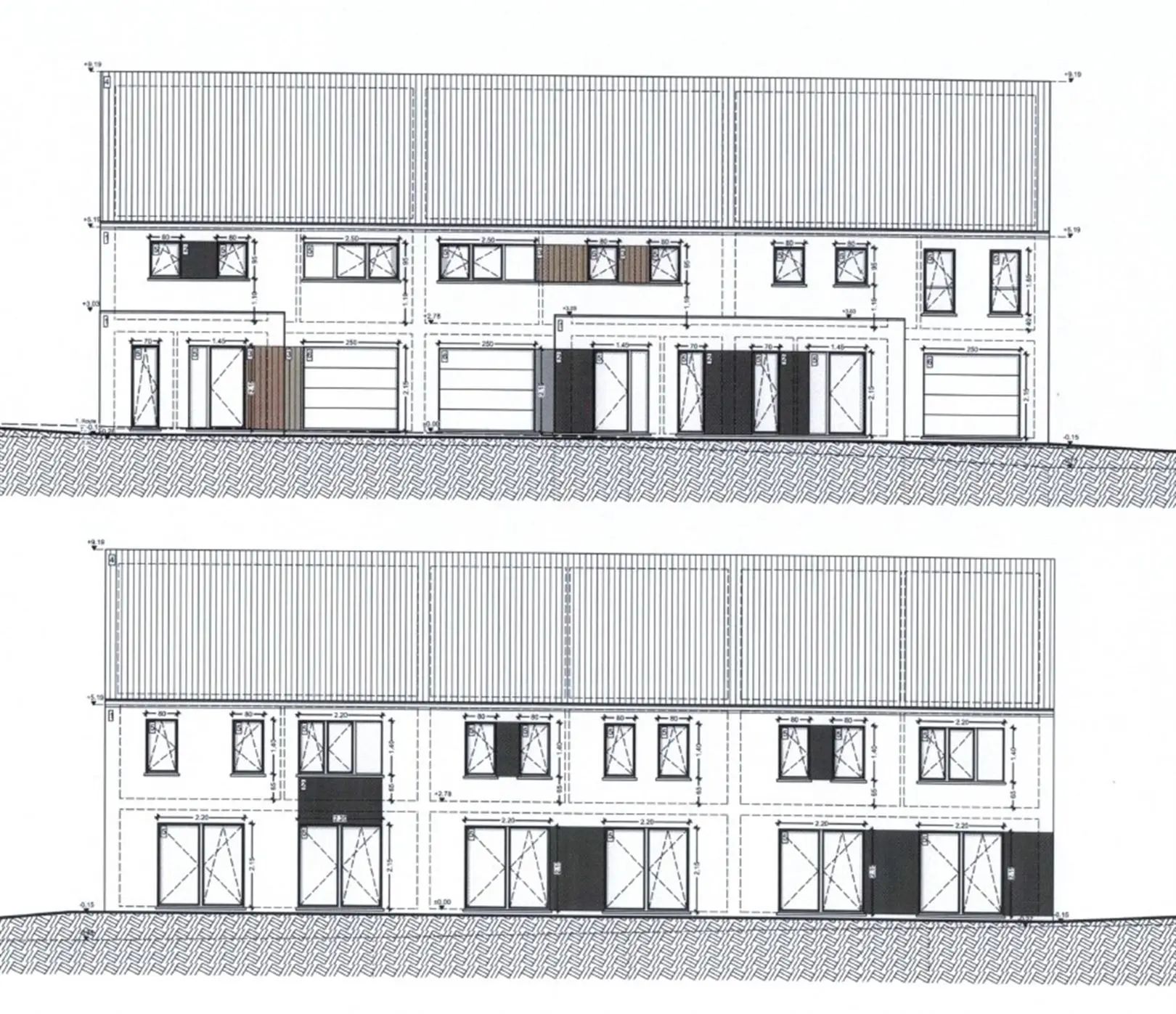
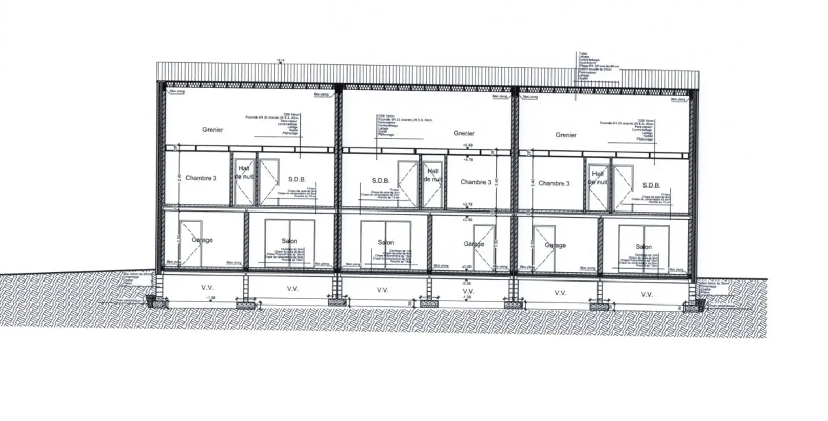
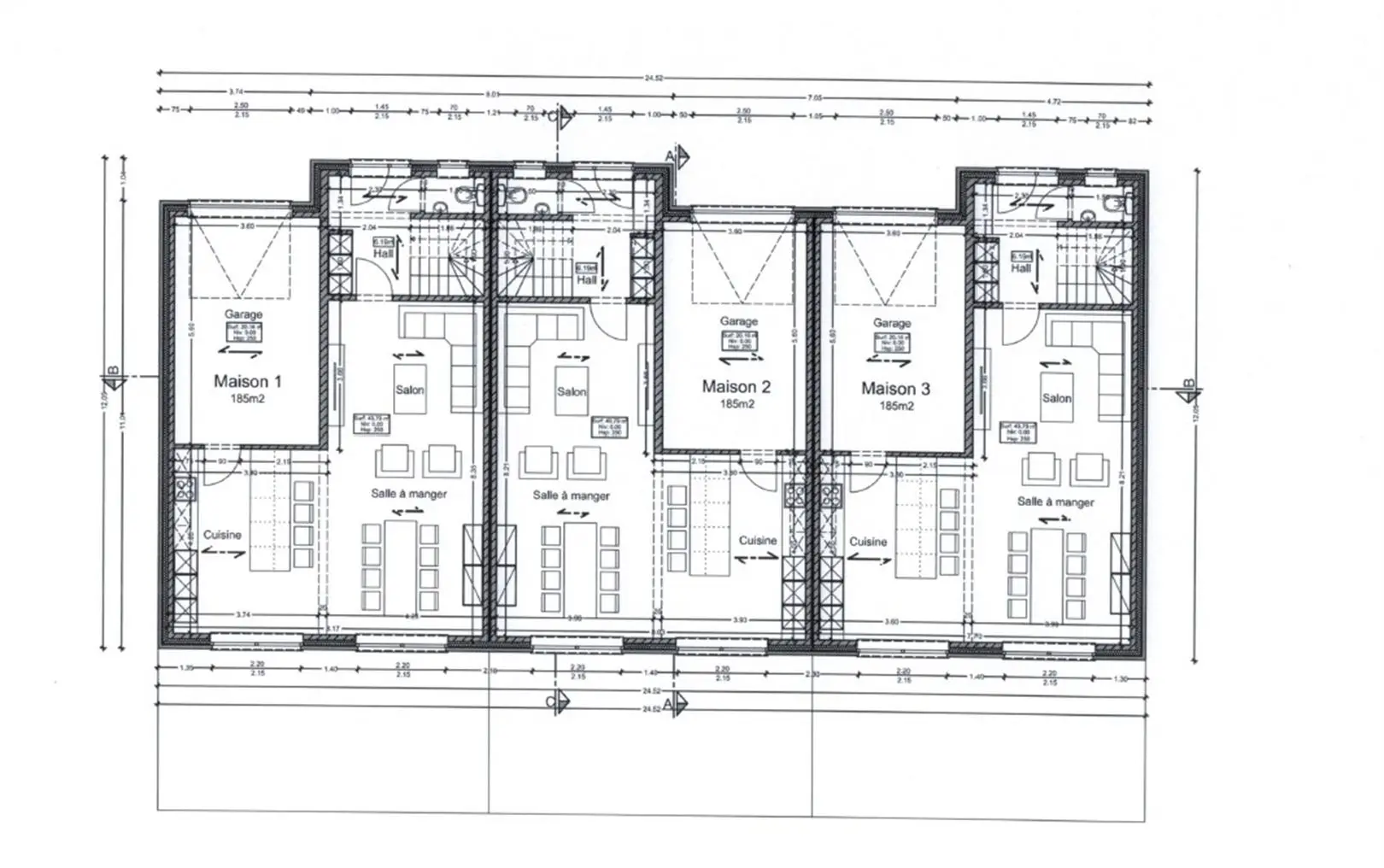
VENDU! METTET - Rue Hubert Penet : Dans le charmant village de Stave, belle parcelle de terrain à bâtir de +/- 19 ares avec permis d\'urbanisme pour la construction de 6 maisons unifamiliales réparties en 2 blocs de 3. Permis valable jusqu\'au 02/09/2029. +/- 85m de façade. Orientation Ouest arrière. Pas d\'obligation de reprendre le permis octroyé. Plans et permis sur demande. Prix: 300.000 € (sous réserve d\'acceptation des propriétaires).
- Grenier Non
- Avec bureau Non
- Ascenseur Non
