Terrain avec possibilité de construire 3 maisons à Stave
Rue Hubert Penet - 5646 STAVE
Voir sur carte
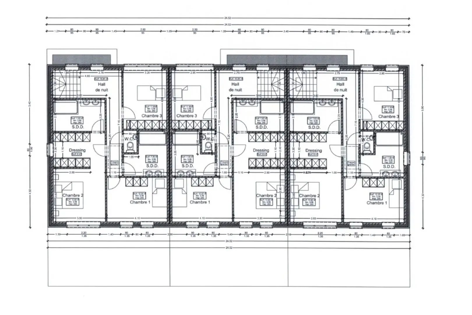
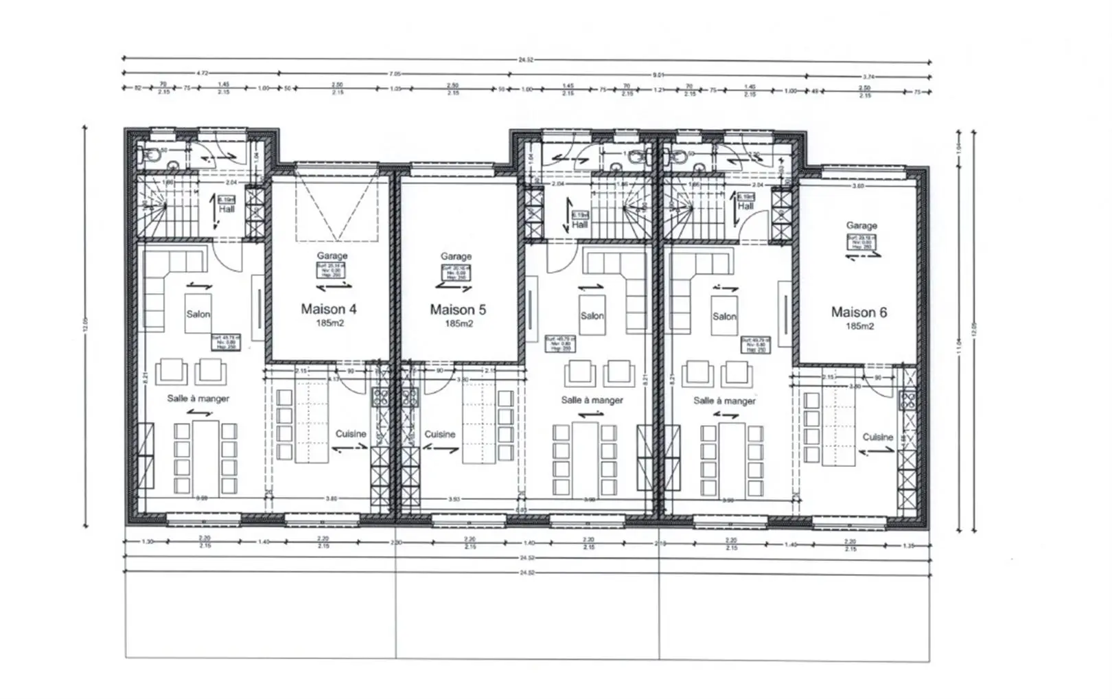
METTET - Rue Hubert Penet : Dans le charmant village de Stave, belle parcelle de terrain à bâtir de +/- 10 ares avec possibilité de construire 3 maisons jumelées. Projet à peaufiner avec l\'urbanisme. +/- 40m de façade. Orientation Ouest arrière. Les photos proposées donnent une idée très précise du projet envisagé. Prix: 150.000 € (sous réserve d\'acceptation des propriétaires).
- Grenier Non
- Avec bureau Non
- Ascenseur Non
