Faire offre à partir de
Terrain de 14a09ca avec permis à Viesville
Rue du Clerc - 6230 VIESVILLE
Voir sur carteRevenu cadastral : 15 €
VIESVILLE - Rue du Clerc 19 : Ce terrain de 14 ares 09 centiares, situé en zone d’habitat au plan de secteur, offre une excellente opportunité pour un projet de construction résidentielle.
Un permis d’urbanisme (encore valable deux ans) est déjà accordé pour la construction d’une habitation 4 façades. La démolition du bâtiment existant (déjà réalisée) suivie d’une reconstruction, permet de bénéficier d’une TVA réduite à 6 %. Gain financier et de temps : le permis étant déjà obtenu, l’acquéreur économise les frais d’architecte liés à la demande de permis, tout en sécurisant immédiatement son projet.
Référence cadastrale : Section B – numéro 495H5.
Un bien rare, prêt à bâtir, idéal pour concrétiser rapidement un projet immobilier! PRIX : faire offre à partir de 190.000€ (sous réserve de l\'acceptation du propriétaire)
Infos et plans disponibles sur demande au 071.810.888 ou par mail : info@davidrobin.be
CARACTERISTIQUES :
- Terrain de 14a 09ca
- Permis obtenu pour la construction d\'une habitation 4 façades
- Démolition du bâtiment existant (déjà réalisée) puis reconstruction ce qui permet d\'avoir une TVA à 6%
- Référence cadastrale : section B numéro 495H5
- Situé en zone d\'habitat au plan de secteur
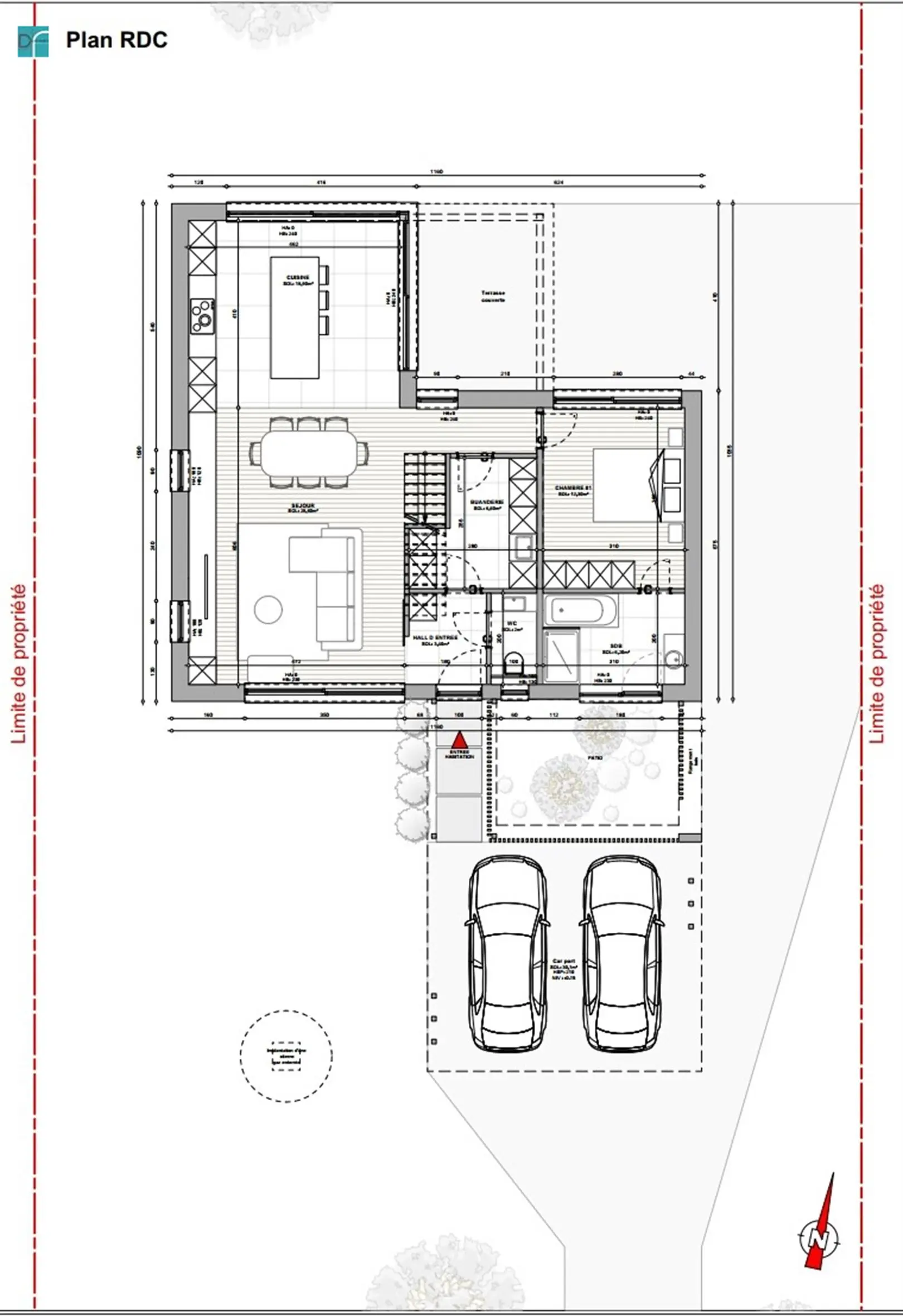
COMPOSITION DE LA FUTURE CONSTRUCTION :
Au niveau du Rez-de-chaussée :
- Hall d\'entrée
- WC séparé
- Séjour
- Cuisine ouverte
- Buanderie
- Chambre
- Salle de bain
- Terrasse
- Carport pour 2 voitures
Au niveau du 1er étage :
- Hall de nuit
- Chambre
- Salle de bain
- Grenier
- Chambre(s) 3
- Grenier Non
- Avec bureau Non
- Ascenseur Non
