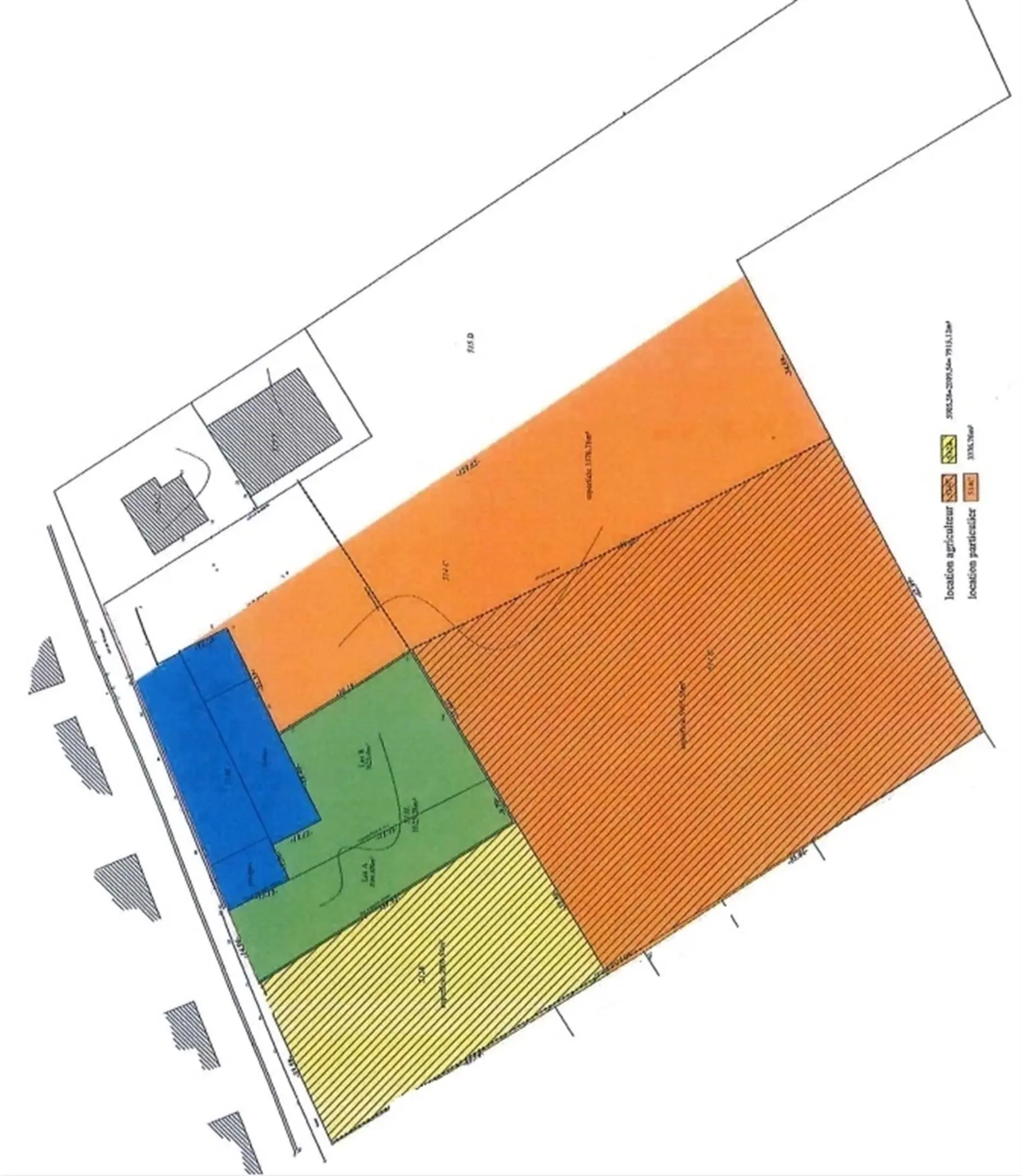
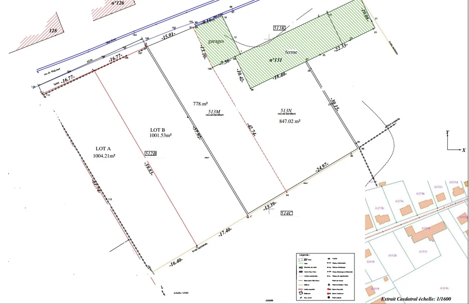
VITRIVAL - rue de Walcourt : Magnifique terrain de 28 ares à bâtir situé en zone d\'habitat à caractère rural situé dans une rue calme à droite du numéro 130. Terrain plat, Profondeur : 60.5 m, Façade : 48.40 m, Orientation : Sud-est, Raccordable à l\'égout. 115 euros du m². Possibilité de diviser le terrain en 3 lots ou de faire un projet immobilier rez +2 avec places de parkings, ou des habitats groupés.Possibilité d\'acquérir une partie du terrain agricole situé a l\'arrière pour 40.000 euros (1 hectare) Prix: 290.000 € (sous réserve de l\'acceptation des propriétaires).
CARACTERISTIQUE:
Terrain à bâtir de +/- 28 ares situé en zone d\'habitat à caractère rural,
115 euros du m²,
Dans une rue calme à droite du numéro 130
Terrain plat
Profondeur : 60.05 m
Façade : 48.40 m
Orientation : Sud Est
Raccordable à l\'égout
Possibilité d\'y construire un complexe immobilier rez + 2 avec parkings, ou des habitats groupés.
Possibilité d\'acquérir une partie du terrain agricole situé a l\'arrière pour 40.000 euros (1 hectare).
- Grenier Non
- Avec bureau Non
- Ascenseur Non
